≪多摩リバーサイドハウス≫ ご成約となりました。
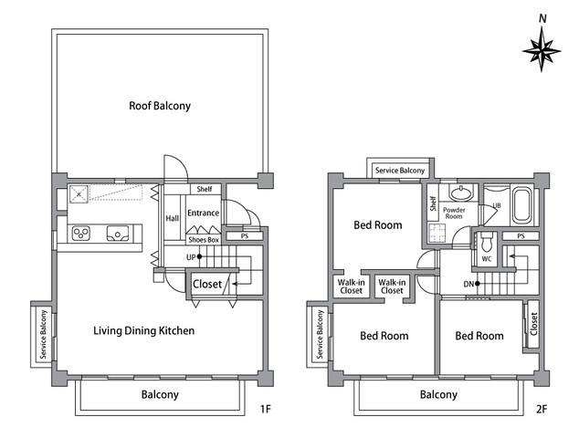
東急多摩川線「鵜の木」駅徒歩7分、多摩川沿いに人気のマンションが立ち並ぶ地域の大型ビンテージマンション。 ハワイやグアムの古いリゾートホテルのようなアメリカンビンテージ風の外観、敷地内にはプールもあって夏にはちびっこがたくさん遊んでいます。 古いマンションですが、ちいさな子供もたくさんいて活気のあるマンションです。 お部屋からは多摩川沿いのサッカー場やラグビー場、野球場などが見渡すことが出来ます。 休日にはジョギングやウォーキングもできて良い気晴らしになると思います。 お部屋は100平米超の3LDK、12階と13階部分のメゾネット住戸、12階は玄関と超大型LDK+大型ルーフバルコニー、13階は浴室・洗面室・トイレの水回りと3室の居室があります。12階部分はLD部分がかなり広いので、間仕切りをしてもう一つ居室を造作することも可能です。 100平米超・メゾネット・上層階の角部屋・ルーフバルコニーなど希少性の高い住戸を5,000万円以下でご紹介しておりますので、この機会に是非ご内覧にお越し下さい。
総戸数126戸の大規模物件。
敷地内にはプールがあります。
古いマンションですがオートロックも完備。
■名称 : 多摩リバーサイドハウス
■所在 : 大田区鵜の木2丁目39-1
■交通 : 東急多摩川線「鵜の木」駅 徒歩7分
■築年 : 1971年9月(昭和46年9月)
■構造 : 鉄骨鉄筋コンクリート造地上14階建
■総戸数 : 126戸
■分譲会社 : 新泉興産(株)
■施工会社 : 清水建設(株)
■管理会社 : (株)東急コミュニティー
■管理態様 : 一部委託(日勤管理)
■駐輪場 : 年額3,000円(※子供用は年額2,000円)
■バイク置場 :年額6,000円~10,000円
■駐車場 : 月額20,000円
■ペット : 飼育不可
高層階のメゾネット住戸。東南角部屋、三面採光の明るいお部屋です。北側には大型ルーフバルコニーがあり、玄関スペースからでき利が可能、見晴らしも良くてホームパーティなどにも活用できそうです。また、働き方改革によるテレワークなど在宅でのお仕事ができるようなスペースも確保できる広い間取りが魅力です。
■間取り : 3LDK+2WIC
■専有面積 : 102.35平米■バルコニー : 15.23平米
■ルーフバルコニー : 37.99平米
■階数/方位 : 12階および13部分 / 南向き
■管理費 : 月額22,520円
■修繕積立金 : 月額15,350円
■期間限定修繕積立金 : 月額14,840円(2022年10月までとなります。)
■現況/引渡し : 空室 / 即可
広い玄関スペース。
リビングの入口は開口部が広くて開放するとより広さが感じられます。
ルーフバルコニーと眺望。
≪おすすめポイント≫人気多摩川沿いの大規模物件 / 多摩川を一望する三面採光の部屋位置 / 100平米を超えるゆとりの間取り / 37.99平米の大型ルーフバルコニー / カフェのような大型カウンターキッチン / マンション内では数少ない1418サイズの浴室 / ゆとりのある玄関スペース / 超大型ワイドリビング / 4LDKとしても利用可能な可変性のある間取り
(リビング&ダイニング) これだけ広いリビングなので、テレワークなどの在宅ワークに対応したスペースを確保できる間取りです。
リビングダイニング&キッチン
多摩川が一望できる眺望。川向うに見えるのは武蔵小杉のビル群です。
(眺望)
(眺望)
(キッチン)
(キッチン)
(階段スペース)
13階部分の廊下スペース。
洗面室にもゆとりがあります。
窓があり、風通しも良く暗くならないので気持ちの良い空間です。収納スペースも充実しております。
このマンション内では数少ない1418サイズの浴室。(追炊き・浴室暖房乾燥機付)
(北側洋室)
(北側洋室)
(東南側洋室)
(東南側洋室)
(南西側洋室)
-
本日更新件
-
非公開物件情報件
-
一週間内の更新件
-
一週間内の新着件
-
全物件数件
最終更新日:月 日
-
- 【当社売主物件】(410)
- 中央区:シティフロントタワー(4)
- 墨田区:マイキャッスル両国エクセレントステージ(4)
- 品川区:ライオンズマンション西五反田(3)
- 中央区:ファミール日本橋グランスイートプラザ(4)
- 横浜市神奈川区:ライオンズマンション岸根公園(4)
- 渋谷区:ニュー代々木マンション(1)
- 墨田区:両国緑スカイハイツ(3)
- 江東区:ガーデンフラッグシティ(4)
- 墨田区:シーズスクエア菊川(4)
- 渋谷区:キャニオングランデ代々木公園(4)
- 江東区:ニュートンプレイス(4)
- 坂戸市:ダイアパレス坂戸ステーションガーデン(3)
- 江東区:ニュートンプレイス(3)
- 江東区:プラウド門前仲町(4)
- 埼玉県坂戸市:坂戸市清水町土地(3)
- 中央区:スカイライトタワー(9)
- 中央区:センチュリーパークタワー(4)
- 江東区:グランアルト豊洲(7)
- 江東区:イトーピア南砂町マンション(3)
- 深谷市:深谷市仲町土地(2)
- 江東区:アーバンドッグパークシティ豊洲タワーA(4)
- 渋谷区:パークホームズ代々木西原(2)
- 渋谷区:ブリリア代官山プレステージ(2)
- 【リフォーム事例】(8)
- 【取引実績】(1)
- 【おすすめ物件】(142)
- ■イトーピア南砂町マンション(1)
- ■ウェルタワー深川(1)
- ■エンゼルハイム門前仲町(1)
- ■エクセル東陽町(4)
- ■アーバンハイツ北砂(1)
- ■アーバンメゾン東大島(1)
- ■アデニウムコート木場公園(1)
- ■イーストコモンズ清澄白河(1)
- ■イトーピア東大島マンション(5)
- ■オーベルグランディオ ベイ・フロント(1)
- ■イトーピア東陽町マンション(5)
- ■クレッセント東京ビュータワー(2)
- ■コスモ・ザ・キャナル東京イースト(1)
- ■コスモ木場キャナルブリーズ(1)
- ■クレストフォルム東京アクアビュー(1)
- ■清澄ハイツ(1)
- ■クリオレジダンス東京(2)
- ■コスモ両国アーバンフォルム(1)
- ■木場ハイツ(1)
- ■木場サンハイツ(1)
- ■グランパーク門前仲町(1)
- ■クレヴィア門前仲町(1)
- ■コープ野村大島(1)
- ■クレアシティ大島(1)
- ■グランシティ木場(1)
- ■木場サニータウン(7)
- ■ガーデンフラッグシティ(1)
- ■クレストフォルム門前仲町古石場(1)
- ■秀和第2東陽町レジデンス(2)
- ■セレナハイムペア浜園(1)
- ■秀和第4東陽町レジデンス(3)
- ■ソフィア東大島(1)
- ■シェルゼ木場公園(1)
- ■ジースクエア(1)
- ■シティコープ千石(1)
- ■スカイシティ南砂(1)
- ■富岡レジデンス(1)
- ■東陽6丁目ハイツ(1)
- ■東海ホーム富岡八幡(1)
- ■東京フロントコート(1)
- ■チサンマンション両国(1)
- ■東陽町スカイハイツ(2)
- ■東陽サニーハイツ(1)
- ■ニュートンプレイス(4)
- ■プラザ元加賀(1)
- ■トリトンスクエアビュータワー(1)
- ■ビーシティキャナルウィング(1)
- ■三井東陽ハイツ(1)
- ■プラタスステージ門前仲町(1)
- ■ハイム木場公園(1)
- ■プラウド清澄白河リバーサイド(1)
- ■牡丹町住宅(2)
- ■ファミリータウン東陽(13)
- ■ファミール亀戸(2)
- ■ファミール浜園(4)
- ■深川住宅(6)
- ■ハイラーク木場(1)
- ■パークシティ中央湊ザ・タワー(1)
- ■マイキャッスル門前仲町古石場ウエスト(1)
- ■門前仲町スカイハイツ(9)
- ■南砂住宅(1)
- ■門前仲町ハイム(1)
- ■南砂グリーンハイツ1号棟(1)
- ■マンション東陽町(1)
- ■ルネ門前仲町(6)
- ■リバーサイドタウン木場南スカイハイツ(1)
- ■ライオンズステージキャピタルイースト(2)
- ■レクセルステージ東京(1)
- ■ルイシャトレ木場公園(1)
- 【ブログ】(495)
- 【マンションのご売却】(13)
- ご売却案件探しています!(4)
- 【マンションのご購入】(53)







