≪レガリアレジデンス早稲田イクス≫ ご成約となりました。
≪レガリアレジデンス西早稲田イクス≫
・早稲田大学隣接
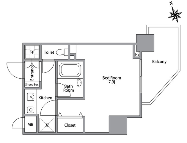
・投資用物件としても利用できる1K(23.76平米)
・想定利回り4.8%以上
・生活環境良好
・2路線利用可
・最上階につき陽当り眺望良好
・モニター付きオートロック、宅配ロッカ―、防犯カメラ完備
・敷地内に駐輪場・バイク置場あり
・バスルーム、トイレ別
・現況空室
・新規内装リフォーム
【外観】 周辺はスーパーやコンビニ、飲食店など充実しており、一人暮らしの方でも安心です。
■名称 : レガリアレジデンス早稲田イクス
■所在 : 新宿区西早稲田1-17-1
■交通 : 東京メトロ東西線「早稲田」駅 徒歩9分 / 都電荒川線「早稲田」駅 徒歩2分
■築年 : 2006年4月(平成18年4月)
■構造 : 鉄筋コンクリート造地上11階建
■総戸数 : 30戸
■分譲会社 : (株)レガリア・(株)クロストラスト
■施工会社 : (株)片山組
■管理会社 : (株)アールコミュニティ
■管理態様 : 全部委託(巡回管理)
■駐輪場 : 月額300円
■バイク置場 : 月額1,000円
■駐車場 : 月額30,000円
■ペット : 飼育可
■間取り : 1Kタイプ
■バルコニー : 5.57平米
■階数/方位 : 11階部分 / 東向き
■管理費 : 月額11,300円
■修繕積立金 : 月額3,000円
■現況/引渡し : 空室 / 即可
≪内装リフォーム済み≫
【玄関】
【室内廊下】
【キッチン&冷蔵庫スペース】
【バスルーム】
【トイレ】
【クローゼット】
【オープン収納を新設】
【室内】
【カウンターデスク新設】
【室内】
【眺望】
【眺望】
-
本日更新件
-
非公開物件情報件
-
一週間内の更新件
-
一週間内の新着件
-
全物件数件
最終更新日:月 日
-
- 【当社売主物件】(410)
- 中央区:シティフロントタワー(4)
- 墨田区:マイキャッスル両国エクセレントステージ(4)
- 品川区:ライオンズマンション西五反田(3)
- 中央区:ファミール日本橋グランスイートプラザ(4)
- 横浜市神奈川区:ライオンズマンション岸根公園(4)
- 渋谷区:ニュー代々木マンション(1)
- 墨田区:両国緑スカイハイツ(3)
- 江東区:ガーデンフラッグシティ(4)
- 墨田区:シーズスクエア菊川(4)
- 渋谷区:キャニオングランデ代々木公園(4)
- 江東区:ニュートンプレイス(4)
- 坂戸市:ダイアパレス坂戸ステーションガーデン(3)
- 江東区:ニュートンプレイス(3)
- 江東区:プラウド門前仲町(4)
- 埼玉県坂戸市:坂戸市清水町土地(3)
- 中央区:スカイライトタワー(9)
- 中央区:センチュリーパークタワー(4)
- 江東区:グランアルト豊洲(7)
- 江東区:イトーピア南砂町マンション(3)
- 深谷市:深谷市仲町土地(2)
- 江東区:アーバンドッグパークシティ豊洲タワーA(4)
- 渋谷区:パークホームズ代々木西原(2)
- 渋谷区:ブリリア代官山プレステージ(2)
- 【リフォーム事例】(8)
- 【取引実績】(1)
- 【おすすめ物件】(142)
- ■イトーピア南砂町マンション(1)
- ■ウェルタワー深川(1)
- ■エンゼルハイム門前仲町(1)
- ■エクセル東陽町(4)
- ■アーバンハイツ北砂(1)
- ■アーバンメゾン東大島(1)
- ■アデニウムコート木場公園(1)
- ■イーストコモンズ清澄白河(1)
- ■イトーピア東大島マンション(5)
- ■オーベルグランディオ ベイ・フロント(1)
- ■イトーピア東陽町マンション(5)
- ■クレッセント東京ビュータワー(2)
- ■コスモ・ザ・キャナル東京イースト(1)
- ■コスモ木場キャナルブリーズ(1)
- ■クレストフォルム東京アクアビュー(1)
- ■清澄ハイツ(1)
- ■クリオレジダンス東京(2)
- ■コスモ両国アーバンフォルム(1)
- ■木場ハイツ(1)
- ■木場サンハイツ(1)
- ■グランパーク門前仲町(1)
- ■クレヴィア門前仲町(1)
- ■コープ野村大島(1)
- ■クレアシティ大島(1)
- ■グランシティ木場(1)
- ■木場サニータウン(7)
- ■ガーデンフラッグシティ(1)
- ■クレストフォルム門前仲町古石場(1)
- ■秀和第2東陽町レジデンス(2)
- ■セレナハイムペア浜園(1)
- ■秀和第4東陽町レジデンス(3)
- ■ソフィア東大島(1)
- ■シェルゼ木場公園(1)
- ■ジースクエア(1)
- ■シティコープ千石(1)
- ■スカイシティ南砂(1)
- ■富岡レジデンス(1)
- ■東陽6丁目ハイツ(1)
- ■東海ホーム富岡八幡(1)
- ■東京フロントコート(1)
- ■チサンマンション両国(1)
- ■東陽町スカイハイツ(2)
- ■東陽サニーハイツ(1)
- ■ニュートンプレイス(4)
- ■プラザ元加賀(1)
- ■トリトンスクエアビュータワー(1)
- ■ビーシティキャナルウィング(1)
- ■三井東陽ハイツ(1)
- ■プラタスステージ門前仲町(1)
- ■ハイム木場公園(1)
- ■プラウド清澄白河リバーサイド(1)
- ■牡丹町住宅(2)
- ■ファミリータウン東陽(13)
- ■ファミール亀戸(2)
- ■ファミール浜園(4)
- ■深川住宅(6)
- ■ハイラーク木場(1)
- ■パークシティ中央湊ザ・タワー(1)
- ■マイキャッスル門前仲町古石場ウエスト(1)
- ■門前仲町スカイハイツ(9)
- ■南砂住宅(1)
- ■門前仲町ハイム(1)
- ■南砂グリーンハイツ1号棟(1)
- ■マンション東陽町(1)
- ■ルネ門前仲町(6)
- ■リバーサイドタウン木場南スカイハイツ(1)
- ■ライオンズステージキャピタルイースト(2)
- ■レクセルステージ東京(1)
- ■ルイシャトレ木場公園(1)
- 【ブログ】(495)
- 【マンションのご売却】(13)
- ご売却案件探しています!(4)
- 【マンションのご購入】(53)







