グランエスタ(7階) / 仲介手数料無料 / 新規内装リノベーション / 総戸数671戸
南砂町駅徒歩2分、総戸数671戸の大規模マンション、ゲストルームやフィットネス施設など共用施設も充実、大型商業施設のスナモ徒歩2分の好立地、ペット飼育可、仲介手数料無料
-
アクセス
- 東京メトロ東西線 南砂町駅 から 徒歩2分
-
価格
- 9380万 円
-
管理費
- 10,300円
-
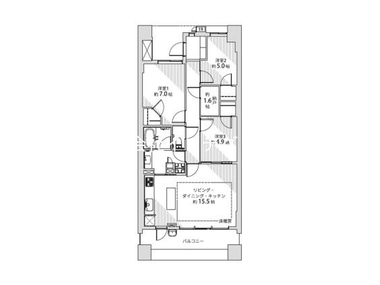
間取り
- 3LDK 南向き
-
専有面積
- 80.33m 2 ( 24.29坪 )
-
築年月
- 2005年12月 ( 築20年 )
間取り図
詳細・設備・条件・取引について
基本
| 問い合わせ番号 | integrity_4_7526 | ||
|---|---|---|---|
| アクセス | 東京メトロ東西線 南砂町駅 から 徒歩2分 | 種別 | マンション |
| 所在地 |
東京都江東区新砂3丁目 4-43
|
学校区 | 南砂小学校(江東区) |
| 問い合わせ番号 | integrity_4_7526 |
|---|---|
| アクセス | 東京メトロ東西線 南砂町駅 から 徒歩2分 |
| 種別 | マンション |
| 所在地 |
東京都江東区新砂3丁目 4-43
|
| 学校区 | 南砂小学校(江東区) |
費用
| 価格 | 9380万円 | 公庫・融資 | フラット35s利用可 |
|---|---|---|---|
| 管理費 | 10,300円 | 修繕積立金 | 7,230円 |
| 駐車場 | 敷地内 ( 月額 12,000円 ) | バイク置場 | 敷地内 ( 月額4000円 ) |
| 駐輪場 | 敷地内 ( 月額150円 ) | ||
| その他費用 (月次等) |
インターネット使用料月額、1468円
|
| 価格 | 9380万円 |
|---|---|
| 公庫・融資 | フラット35s利用可 |
| 管理費 | 10,300円 |
| 修繕積立金 | 7,230円 |
| 駐車場 | 敷地内 ( 月額 12,000円 ) |
| バイク置場 | 敷地内 ( 月額4000円 ) |
| 駐輪場 | 敷地内 ( 月額150円 ) |
| その他費用 (月次等) |
インターネット使用料月額、1468円
|
建物
| 構造 | 鉄筋コンクリート造 | 完成年月 | 2005年12月 ( 築20年 ) |
|---|---|---|---|
| 専有面積 | 80.33m 2 ( 24.29坪 ) | バルコニー面積 | 13.20m 2 ( 3.99坪 ) 南向き |
| 間取り | 3LDK 南向き | 所在階 | 7階 |
| リフォーム | - | リノベーション | 2025年01月実施、 新規内装リノベーション |
| 階建 | 20階建 | 総戸数 | 671戸 |
| 管理人 | 日勤管理 | 管理形態 | 全面委託 |
| 管理組合有無 | 有 | 管理会社名 | (株)穴吹コミュニティ |
| 施工会社名 | 戸田建設(株) | 建築確認番号 | - |
| こだわり条件 |
|
||
| 設備・条件 | ■24時間有人管理 ■駐車場:月額12,000円~21,000円 ■バイク置場:月額4,000円~4,200円 ■自転車置場:月額150円・200円 ■インターネットサービス保守管理料:月額1468円 ■自治会費:月額100円(任意) ■学区:南砂小学校・第三砂町中学校 ■ペット:飼育可(大型犬可※飼育細則あり) ■オートロック・宅配ロッカ―・防犯カメラ・24時間ゴミ出しOK・託児所あり | ||
| 構造 | 鉄筋コンクリート造 | ||
|---|---|---|---|
| 完成年月 | 2005年12月 ( 築20年 ) | ||
| 専有面積 | 80.33m 2 ( 24.29坪 ) | ||
| バルコニー面積 | 13.20m 2 ( 3.99坪 ) 南向き | ||
| 間取り | 3LDK 南向き | ||
| 所在階 | 7階 | ||
| リフォーム | - | ||
| リノベーション | 2025年01月実施、 新規内装リノベーション | ||
| 階建 | 20階建 | ||
| 総戸数 | 671戸 | ||
| 管理人 | 日勤管理 | ||
| 管理形態 | 全面委託 | ||
| 管理組合有無 | 有 | ||
| 管理会社名 | (株)穴吹コミュニティ | ||
| 施工会社名 | 戸田建設(株) | ||
| 建築確認番号 | - | ||
| こだわり条件 | ペット相談/即入居可/仲介手数料ゼロ/エレベーター/二階以上/南向き/日当たり良好/24時間ごみ出し可/コンビニ近くに有/免振・耐震設計/システムキッチン/浄水器/食器洗浄乾燥機/追い焚き/シャンプードレッサー/温水洗浄便座/浴室乾燥機/24時間換気システム/トランクルーム/ウォークインクローゼット/CATV/インターネット/オートロック/宅配ボックス/TVドアホン付き/監視・防犯カメラ/駐輪場有り/バイク置場有り/駐車場有り/フローリング/外観タイル貼り/リフォーム済/フラット35/住宅ローン減税対象/未内装物件/総戸数100戸以上/3rooms~ | ||
| 設備・条件 | ■24時間有人管理 ■駐車場:月額12,000円~21,000円 ■バイク置場:月額4,000円~4,200円 ■自転車置場:月額150円・200円 ■インターネットサービス保守管理料:月額1468円 ■自治会費:月額100円(任意) ■学区:南砂小学校・第三砂町中学校 ■ペット:飼育可(大型犬可※飼育細則あり) ■オートロック・宅配ロッカ―・防犯カメラ・24時間ゴミ出しOK・託児所あり | ||
その他
| 現況 ・ 入居 | 空家 ・ 即時 | 取引態様 | 仲介 |
|---|---|---|---|
| 次回更新日 | 2026/03/26 | 担当者 | - |
| 現況 ・ 入居 | 空家 ・ 即時 |
|---|---|
| 取引態様 | 仲介 |
| 次回更新日 | 2026/03/26 |
| 担当者 | - |
グランエスタ(7階)の詳しい情報やお問い合わせはこちら!
お問い合わせ先:株式会社インテグリティ 本社
免許番号:東京都知事(3)第96579号
営業時間:9:30 ~ 18:30
TEL:03-5620-8581
こちらの物件もあります。
3099万 円
東京都江東区木場
木場駅から徒歩 2分
4899万 円
東京都江東区北砂
大島駅から徒歩 16分
1億9400万 円
東京都中央区勝どき
勝どき駅から徒歩 6分
1億1990万 円
東京都江東区豊洲
豊州駅から徒歩 5分
1億7980万 円
東京都中央区勝どき
勝どき駅から徒歩 7分
1億898万 円
東京都墨田区太平
錦糸町駅から徒歩 7分
6490万 円
東京都江東区東砂
大島駅から徒歩 18分
3億3800万 円
東京都中央区勝どき
勝どき駅から徒歩 7分
1億8800万 円
東京都中央区湊
八丁堀駅から徒歩 6分
1億3980万 円
東京都中央区晴海
勝どき駅から徒歩 12分
4280万 円
東京都江東区冬木
門前仲町駅から徒歩 9分
1億5499万 円
東京都中央区勝どき
勝どき駅から徒歩 7分
5300万 円
東京都江東区南砂
東陽町駅から徒歩 13分
1億4590万 円
東京都中央区湊
八丁堀駅から徒歩 5分
2億1000万 円
東京都中央区勝どき
勝どき駅から徒歩 6分





≪おすすめポイント≫
●南砂町駅から徒歩2分の総戸数671戸の大規模マンション
●平成17年築・充実の共用施設が魅力
●ペット飼育可能物件(大型犬飼育可)
●新規内装リノベーション
●80.33㎡の3LDK + 南向き
●床暖房・食洗器・浴室換気乾燥機など充実の設備仕様
●住宅ローン控除対象物件
●大型ショッピングモールスナモが至近
【充実の共用施設】
フロントサービス / ミニショップ / フィットネスアリーナ / AVルーム / 多目的ホール / グランヴューラウンジ / ゲストルーム / 託児所
≪住宅ローン例≫
●物件価格 : 9,380万円
●頭 金 : 0万円
●借入金額 : 9,380万円
●返済期間 : 35年
●金 利 : 0.445%(変動)
●月々返済 : 241,218円※ボーナス時返済0円
≪仲介手数料無料≫
当社では本物件ご購入時の仲介手数料約316万円を無料にてご案内致します。
【グランエスタ】のご案内は・・・江東区中古マンション専門・・・門前仲町駅から徒歩2分の『株式会社インテグリティ』にお任せ下さい(^^)/