ファミール浜園(14階) / 仲介手数料無料 / リノベーション実施 / 総戸数468戸の大規模マンション
管理体制良好な総戸数468戸の大規模物件 / 日当たり良好な最上階南西向き / 豊洲エリアが生活圏 / 敷地内自走式平置き駐車場
-
アクセス
- 東京メトロ有楽町線 豊州駅 から 徒歩11分
-
価格
- 7299万 円
-
管理費
- 13,430円
-
間取り
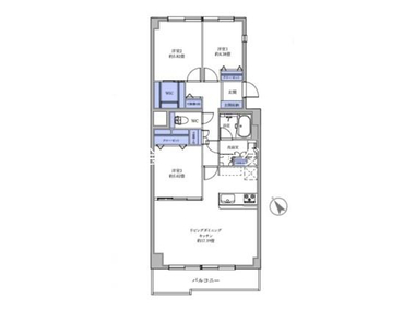
- 3LDK 南西向き
-
専有面積
- 76.33m 2 ( 23.08坪 )
-
築年月
- 1981年08月 ( 築44年 )
間取り図
詳細・設備・条件・取引について
基本
| 問い合わせ番号 | integrity_4_7488 | ||
|---|---|---|---|
| アクセス |
東京メトロ有楽町線 豊州駅
から 徒歩11分
京葉線 越中島駅 から 徒歩14分 東京メトロ東西線 木場駅 から 徒歩17分 |
種別 | マンション |
| 所在地 |
東京都江東区塩浜1丁目 1-13
|
学校区 | 越中島小学校(江東区) |
| 問い合わせ番号 | integrity_4_7488 |
|---|---|
| アクセス |
東京メトロ有楽町線 豊州駅
から 徒歩11分
京葉線 越中島駅 から 徒歩14分 東京メトロ東西線 木場駅 から 徒歩17分 |
| 種別 | マンション |
| 所在地 |
東京都江東区塩浜1丁目 1-13
|
| 学校区 | 越中島小学校(江東区) |
費用
| 価格 | 7299万円 | 公庫・融資 | フラット35利用可 |
|---|---|---|---|
| 管理費 | 13,430円 | 修繕積立金 | 10,690円 |
| 駐車場 | 敷地内 ( 月額 13,000円 ) | バイク置場 | 敷地内 |
| 駐輪場 | 敷地内 |
| 価格 | 7299万円 |
|---|---|
| 公庫・融資 | フラット35利用可 |
| 管理費 | 13,430円 |
| 修繕積立金 | 10,690円 |
| 駐車場 | 敷地内 ( 月額 13,000円 ) |
| バイク置場 | 敷地内 |
| 駐輪場 | 敷地内 |
建物
| 構造 | 鉄骨鉄筋コンクリート造 | 完成年月 | 1981年08月 ( 築44年 ) |
|---|---|---|---|
| 専有面積 | 76.33m 2 ( 23.08坪 ) | バルコニー面積 | 7.77m 2 ( 2.35坪 ) 南西向き |
| 間取り | 3LDK 南西向き | 所在階 | 14階 |
| リフォーム | - | リノベーション | - |
| 階建 | 14階建 | 総戸数 | 468戸 |
| 管理人 | 日勤管理 | 管理形態 | 全面委託 |
| 管理組合有無 | 有 | 管理会社名 | 三菱地所コミュニティ(株) |
| 施工会社名 | 株式会社間組/前田建設工業株式会社/小田急建設株式会社 | 建築確認番号 | - |
| こだわり条件 |
|
||
| 設備・条件 | ■駐車場:月額16,000円~20,000円 ■駐輪場:年額2,000円(屋根有り)・年額1,000円(屋根なし) ■バイク置場:年額10,000円(50CC以上)・年額5,000円(50CC未満) ■敷地内洗車スペースあり ■来客用駐車スペースあり ■敷地内公園あり ■敷地内スーパーあり(赤札堂) ■学区:越中島小学校、深川第三中学校 ■ペット:飼育不可 ■2030年大規模修繕工事実施予定 | ||
| 構造 | 鉄骨鉄筋コンクリート造 | ||
|---|---|---|---|
| 完成年月 | 1981年08月 ( 築44年 ) | ||
| 専有面積 | 76.33m 2 ( 23.08坪 ) | ||
| バルコニー面積 | 7.77m 2 ( 2.35坪 ) 南西向き | ||
| 間取り | 3LDK 南西向き | ||
| 所在階 | 14階 | ||
| リフォーム | - | ||
| リノベーション | - | ||
| 階建 | 14階建 | ||
| 総戸数 | 468戸 | ||
| 管理人 | 日勤管理 | ||
| 管理形態 | 全面委託 | ||
| 管理組合有無 | 有 | ||
| 管理会社名 | 三菱地所コミュニティ(株) | ||
| 施工会社名 | 株式会社間組/前田建設工業株式会社/小田急建設株式会社 | ||
| 建築確認番号 | - | ||
| こだわり条件 | 即入居可/仲介手数料ゼロ/エレベーター/二階以上/南向き/日当たり良好/24時間ごみ出し可/コンビニ近くに有/システムキッチン/対面キッチン/浄水器/食器洗浄乾燥機/追い焚き/シャンプードレッサー/温水洗浄便座/浴室乾燥機/ウォークインクローゼット/CATV/インターネット/宅配ボックス/TVドアホン付き/管理人常駐/監視・防犯カメラ/駐輪場有り/バイク置場有り/駐車場有り/フローリング/値下げ物件/リフォーム済/フラット35/総戸数100戸以上/3rooms~/10,000万円以下 | ||
| 設備・条件 | ■駐車場:月額16,000円~20,000円 ■駐輪場:年額2,000円(屋根有り)・年額1,000円(屋根なし) ■バイク置場:年額10,000円(50CC以上)・年額5,000円(50CC未満) ■敷地内洗車スペースあり ■来客用駐車スペースあり ■敷地内公園あり ■敷地内スーパーあり(赤札堂) ■学区:越中島小学校、深川第三中学校 ■ペット:飼育不可 ■2030年大規模修繕工事実施予定 | ||
その他
| 現況 ・ 入居 | 空家 ・ 即時 | 取引態様 | 仲介 |
|---|---|---|---|
| 次回更新日 | 2026/06/19 | 担当者 | - |
| 現況 ・ 入居 | 空家 ・ 即時 |
|---|---|
| 取引態様 | 仲介 |
| 次回更新日 | 2026/06/19 |
| 担当者 | - |
ファミール浜園(14階)の詳しい情報やお問い合わせはこちら!
お問い合わせ先:株式会社インテグリティ 本社
免許番号:東京都知事(3)第96579号
営業時間:9:30 ~ 18:30
TEL:03-5620-8581
こちらの物件もあります。
1億5500万 円
東京都江東区豊洲
豊州駅から徒歩 4分
1億990万 円
東京都中央区晴海
勝どき駅から徒歩 14分
1億3990万 円
東京都中央区新川
茅場町駅から徒歩 6分
5899万 円
東京都墨田区立川
菊川駅から徒歩 8分
1億6480万 円
東京都中央区月島
月島駅から徒歩 1分
2億5680万 円
東京都中央区勝どき
勝どき駅から徒歩 2分
3980万 円
東京都江東区南砂
南砂町駅から徒歩 10分
1億4690万 円
東京都江東区豊洲
豊州駅から徒歩 6分
2億9300万 円
東京都中央区勝どき
勝どき駅から徒歩 7分
1億2580万 円
東京都中央区晴海
勝どき駅から徒歩 11分
4280万 円
東京都江東区南砂
南砂町駅から徒歩 13分
1億7000万 円
東京都江東区清澄
清澄白河駅から徒歩 8分
1億2800万 円
東京都中央区晴海
月島駅から徒歩 6分
1億1480万 円
東京都中央区月島
月島駅から徒歩 1分
1億6800万 円
東京都中央区佃
月島駅から徒歩 8分





≪おすすめポイント≫
○深川第三中学校学区内
○豊洲が近くてお買物便利
○管理費・修繕費・駐車場低額
○リバーサイドマンション
○敷地内洗車スペース
○新規内装リノベーション
○収納スペースが充実
○充実の設備仕様
○モニター付きインターホン
○宅配ボックス完備
○管理体制良好
≪住宅ローン≫
○物件価格 : 7,299万円
○頭 金 : 0万円
○借入金額 : 7,299万円
○返済期間 : 35年
○金 利 : 0.725%(変動金利)
○月々返済 : 196,818円/ボーナス時返済0円
≪仲介手数料無料≫
当社では本物件ご購入時の仲介手数料約247万円が不要♪
★★★中古マンション専門★★★
江東区に特化した当社は中古マンション実績多数!【ファミール浜園】のご案内は門前仲町駅から徒歩2分の『株式会社インテグリティ』にお任せ下さい!