アリアシティ(1階) / 仲介手数料50%OFF / 新規内装リノベーション / 専用庭付き
陽当りの良い約31.64㎡のテラス&専用庭付き1階住戸、71.61㎡のリノベーション済み3LDK、ペット飼育可能、対面キッチン、仲介手数料50%OFF!
-
アクセス
- 都営新宿線 菊川駅 から 徒歩9分
-
価格
- 9990万 円
-
管理費
- 9,230円
-
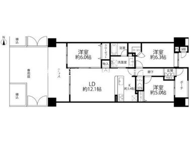
間取り
- 3LDK 西向き
-
専有面積
- 71.61m 2 ( 21.66坪 )
-
築年月
- 2001年09月 ( 築24年 )
間取り図
詳細・設備・条件・取引について
基本
| 問い合わせ番号 | integrity_4_7778 | ||
|---|---|---|---|
| アクセス |
都営新宿線 菊川駅
から 徒歩9分
東京メトロ半蔵門線 住吉駅 から 徒歩10分 都営大江戸線 清澄白河駅 から 徒歩12分 |
種別 | マンション |
| 所在地 |
東京都江東区猿江1丁目 1-7
|
学校区 | 東川小学校(江東区) |
| 問い合わせ番号 | integrity_4_7778 |
|---|---|
| アクセス |
都営新宿線 菊川駅
から 徒歩9分
東京メトロ半蔵門線 住吉駅 から 徒歩10分 都営大江戸線 清澄白河駅 から 徒歩12分 |
| 種別 | マンション |
| 所在地 |
東京都江東区猿江1丁目 1-7
|
| 学校区 | 東川小学校(江東区) |
費用
| 価格 | 9990万円 | 公庫・融資 | フラット35S利用可能 |
|---|---|---|---|
| 管理費 | 9,230円 | 修繕積立金 | 23,350円 |
| 駐車場 | 敷地内 ( 月額 21,500円 ) | バイク置場 | 敷地内 ( 月額3000円 ) |
| 駐輪場 | 敷地内 ( 月額100円 ) | ||
| その他費用 (月次等) |
専用庭使用料:月額、550円
インターネット使用料:月額、1100円 |
| 価格 | 9990万円 |
|---|---|
| 公庫・融資 | フラット35S利用可能 |
| 管理費 | 9,230円 |
| 修繕積立金 | 23,350円 |
| 駐車場 | 敷地内 ( 月額 21,500円 ) |
| バイク置場 | 敷地内 ( 月額3000円 ) |
| 駐輪場 | 敷地内 ( 月額100円 ) |
| その他費用 (月次等) |
専用庭使用料:月額、550円
インターネット使用料:月額、1100円 |
建物
| 構造 | 鉄筋コンクリート造 | 完成年月 | 2001年09月 ( 築24年 ) |
|---|---|---|---|
| 専有面積 | 71.61m 2 ( 21.66坪 ) | バルコニー面積 | 13.44m 2 ( 4.06坪 ) 西向き |
| 間取り | 3LDK 西向き | 所在階 | 1階 |
| リフォーム | - | リノベーション | 2026年05月実施、 新規内装リノベーション |
| 階建 | 13階建 | 総戸数 | 126戸 |
| 管理人 | 日勤管理 | 管理形態 | 全面委託 |
| 管理組合有無 | 有 | 管理会社名 | 住商建物 |
| 施工会社名 | 熊谷組 | 建築確認番号 | - |
| こだわり条件 |
|
||
| 設備・条件 | ■専用庭:18.20㎡ ■敷地内駐車場(空きあり)月額:19,000円~24,000円 ■バイク置場(空きあり)月額:3,000円 ■駐輪場(空きあり)月額:100円~500円) ■ペット飼育可(飼育細則あり) ■24時間ゴミ出し可 |
||
| 構造 | 鉄筋コンクリート造 | ||
|---|---|---|---|
| 完成年月 | 2001年09月 ( 築24年 ) | ||
| 専有面積 | 71.61m 2 ( 21.66坪 ) | ||
| バルコニー面積 | 13.44m 2 ( 4.06坪 ) 西向き | ||
| 間取り | 3LDK 西向き | ||
| 所在階 | 1階 | ||
| リフォーム | - | ||
| リノベーション | 2026年05月実施、 新規内装リノベーション | ||
| 階建 | 13階建 | ||
| 総戸数 | 126戸 | ||
| 管理人 | 日勤管理 | ||
| 管理形態 | 全面委託 | ||
| 管理組合有無 | 有 | ||
| 管理会社名 | 住商建物 | ||
| 施工会社名 | 熊谷組 | ||
| 建築確認番号 | - | ||
| こだわり条件 | ペット相談/即入居可/仲介手数料ゼロ/エレベーター/二階以上/日当たり良好/閑静な住宅街/24時間ごみ出し可/コンビニ近くに有/免振・耐震設計/システムキッチン/対面キッチン/浄水器/食器洗浄乾燥機/追い焚き/シャンプードレッサー/温水洗浄便座/浴室乾燥機/床暖房/ウォークインクローゼット/CATV/インターネット/オートロック/宅配ボックス/TVドアホン付き/監視・防犯カメラ/駐輪場有り/バイク置場有り/駐車場有り/フローリング/外観タイル貼り/値下げ物件/フラット35/住宅ローン減税対象/総戸数100戸以上/3rooms~ | ||
| 設備・条件 | ■専用庭:18.20㎡ ■敷地内駐車場(空きあり)月額:19,000円~24,000円 ■バイク置場(空きあり)月額:3,000円 ■駐輪場(空きあり)月額:100円~500円) ■ペット飼育可(飼育細則あり) ■24時間ゴミ出し可 |
||
その他
| 現況 ・ 入居 | 空家 ・ 相談 | 取引態様 | 仲介 |
|---|---|---|---|
| 次回更新日 | 2026/06/02 | 担当者 | - |
| 現況 ・ 入居 | 空家 ・ 相談 |
|---|---|
| 取引態様 | 仲介 |
| 次回更新日 | 2026/06/02 |
| 担当者 | - |
アリアシティ(1階)の詳しい情報やお問い合わせはこちら!
お問い合わせ先:株式会社インテグリティ 本社
免許番号:東京都知事(3)第96579号
営業時間:9:30 ~ 18:30
TEL:03-5620-8581
こちらの物件もあります。
1億290万 円
東京都墨田区業平
押上駅から徒歩 7分
1億690万 円
東京都江東区豊洲
豊州駅から徒歩 12分
7699万 円
東京都中央区月島
月島駅から徒歩 3分
4180万 円
東京都墨田区本所
両国駅から徒歩 7分
1億2800万 円
東京都中央区日本橋浜町
浜町駅から徒歩 3分
5990万 円
東京都江東区大島
東大島駅から徒歩 1分
5899万 円
東京都墨田区立川
菊川駅から徒歩 8分
8690万 円
東京都中央区晴海
勝どき駅から徒歩 9分
1億7980万 円
東京都中央区佃
月島駅から徒歩 9分
1億9980万 円
東京都中央区晴海
月島駅から徒歩 11分
1億9500万 円
東京都墨田区太平
錦糸町駅から徒歩 7分
2億3980万 円
東京都中央区勝どき
勝どき駅から徒歩 2分
7498万 円
東京都中央区日本橋箱崎町
水天宮前駅から徒歩 4分
2億6300万 円
東京都中央区勝どき
勝どき駅から徒歩 7分
1億4690万 円
東京都江東区豊洲
豊州駅から徒歩 6分





≪おすすめポイント≫
■都営新宿線・半蔵門線「住吉」駅が利用可能
■『大手町』『渋谷』『新宿』へダイレクトアクセス
■陽当りの良い約31.64㎡のテラス&専用庭付き1階住戸
■新規内装リノベーション
■逆梁アウトフレーム工法・ハイサッシの明るいお部屋
■大型のウォークインクローゼット付のお部屋
■3駅3路線が利用可能!子育てにも優れた好立地
■住宅ローン控除利用可
■ペット飼育可能(飼育細則あり)
≪住宅ローン返済例≫
□購入価格 : 9,990万円
□自己資金 : 0円
□借入金額 : 9,990万円
□借入金利 : 0.725%
□返済期間 : 35年
□月々返済 : 269,381円※ボーナス返済無し
≪仲介手数料50%OFF≫
本物件購入時の仲介手数料336万円を半額にてご案内をさせていただきます!
【アリアシティ】のご購入をご検討のお客様は江東区中古マンション取扱実績多数の『インテグリティ』にお任せ下さい!
■ご売却物件大募集中
■無料査定・秘密厳守
■不動産仲介
■不動産買取り
■リフォーム&リノベーション