★弊社売主物件★『パークホームズ代々木西原』2025年築、「幡ヶ谷」駅から商店街を通って徒歩5分、渋谷区西原の静かな邸宅街に佇む高級レジデンス、高台立地の南東向き最上階住戸!
2025年築、三井不動産レジデンシャル旧分譲「パークホームズ」シリーズの新築未入居物件。旧丸紅社宅跡地、資産性の高い、駅近、南傾斜の高台、三面接道の角立地。
駅近物件で商店街を通る立地でありながら、渋谷区西原の静かな邸宅街に立地する希少物件。京王線「幡ヶ谷」駅徒歩5分が最寄り駅ですが、徒歩9分で千代田線・小田急線が乗り入れする「代々木上原」駅も利用できる交通アクセスも魅力の物件です。
エントランス
エントランス
エントランス
キーをタッチするとポストとお荷物が入っている場所が開きます。
ラウンジ
ラウンジ
■名 称 : パークホームズ代々木西原
■所 在 : 東京都渋谷区西原2-24-1(グーグルマップ)
■交 通 : 京王線「幡ヶ谷」駅徒歩5分
東京メトロ千代田線・小田急線「代々木上原」駅徒歩9分
■築 年 : 2025年(令和7年)
■構 造 : 鉄筋コンクリート造地上6階建
■総戸数 : 69戸
■分譲会社 : 三井不動産レジデンシャル、丸紅都市開発
■施工会社 : 西松建設
■管理会社 : 三井不動産レジデンシャルサービス
■管理形態 : 全部委託(日勤管理)
■ペット : 飼育可(1住戸2匹まで)
■駐車場 : 月額31,000円~37,000円
■駐輪場 : 月額300円~500円
■バイク置場: 月額3,000円(原付は2,000円)
■インターネット接続料:月額649円
【新築未入居物件】
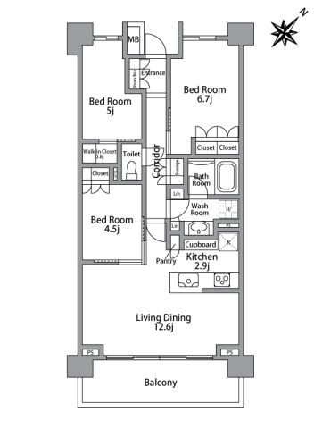
■間取り : 3LDK+WIC
■専有面積 : 72.40㎡(壁芯面積)
■バルコニー : 10.98㎡
■階数/方位 : 6階部分(最上階) / 東南向き(東京タワーVIEW)
■管理費 : 月額24,910円
■修繕積立金 : 月額13,030円
■現況/引渡し: 空室 / 即可
■固都税 : 未定(令和8年度)
最上階は6住戸のみ
玄関
廊下収納
対面キッチン&開放的なワイドリビング
床暖房のあるリビング
収納が豊富でちょうどいい広さの72.40㎡
バルコニー&眺望
バルコニー&眺望
高台立地のため6階部分でもこの見晴らし
渋谷駅周辺のビル群や東京タワーまで見渡せます
全開放できる窓だからバルコニーまでリビングの延長に感じられます
≪おすすめポイント≫
■2025年築の新築未入居物件
■三井不動産レジデンシャル旧分譲「パークホームズ」シリーズ
■南傾斜の高台立地&最上階&見晴らしの良い南東向き
■邸宅街の西原アドレス&商店街のある街並み
■京王線「幡ヶ谷」駅徒歩5分の閑静な住宅地
■「代々木上原」駅徒歩9分で千代田線と小田急線が利用可能
■「西原小学校」徒歩1分、幼稚園・保育園も近隣に複数箇所あり
■豊富な収納が魅力
■キッチンにはパントリー&カップボード付き
■対面キッチン&ワイドリビング
■床暖房のあるリビング
■食洗器・ディスポーザー・浄水器内蔵水栓
■エコジョーズ
■浴室乾燥機
■タンクレストイレ
■日光や風雨に晒されず、盗難の不安も少ない屋内式自転車置場
■屋内式ゴミ置き場(24時間ゴミ出し可能)
■シャッターゲート付き駐車場
■ちょっとした打ち合わせに便利なオーナーズラウンジ
■ペットは1住戸2匹まで飼育可能
機能性、仕様感ともに充実のキッチンスペース
パントリー&カップボード
明るいキッチンスペース
ワイドシンク&ディスポーザー
食洗機
キッチン収納&操作パネル
お手入れのしやすさ耐久性が魅力のガラストップコンロ
リビングに面している洋室
リビングに面している洋室
洗面室の収納力が凄い
常備品や防災準備品など、洗面室廻りの物品以外もたっぷり収納できます。
洗面化粧台の収納も充実
1418サイズのバスルーム
浴室乾燥機付き
高機能タンクレストイレ
5.0帖洋室
6.7帖洋室
日光や風雨に晒されず、盗難の恐れもない屋内式駐輪場
シャッターゲート付き駐車場
上段:全長505cm以下/全幅185cm以下/全高210cm以下
中段:全長505cm以下/全幅185cm以下/全高155cm以下
下段:全長505cm以下/全幅185cm以下/全高200cm以下
24時間ゴミ出し可能
≪LIFE INFO≫
西原小学校(徒歩1分) / 代々木中学校(徒歩9分) / さくらさくみらい西原保育園(徒歩1分) / 西原りとるぱんぷきんずこども園(徒歩4分) / 福田幼稚園(徒歩5分) / 西原図書館(徒歩1分) / 渋谷区スポーツセンター(徒歩6分) / 西原ゴルフガーデン(徒歩4分) / ダイエー幡ヶ谷店(徒歩5分) / 全日食チェーンほしの(徒歩3分) / ライフ幡ケ谷店(徒歩7分) / 中山青果店(徒歩3分) / 幡ヶ谷駅地下商店街(徒歩5分) / 西原緑道(徒歩3分)
(本物件の魅力)
本物件の魅力は、駅近物件で、商店街があって、立地は静かな高台の邸宅街という立地、2駅3路線が利用できる交通アクセス、三井不動産による旧分譲物件「パークホームズ」シリーズの新築というブランド感と所有感、同マンション内でも6邸しかない最上階かつ見晴らしの良い部屋位置となります。
(共働きの子育て世帯におすすめ)
複数路線が利用できる交通アクセス、最寄り駅までの導線上は商店街、小学校や保育園が近くに複数箇所あり、図書館は徒歩1分、72.40㎡という専有面積ながら豊富な収納など、共働きの子育て世帯のライフスタイルに充分に応えられる物件です。
(子育てが終わったシニア世代におすすめ)
子育てが終わり、その子供たちも独立して、現在の広いお住まいを持て余しているようなご夫婦におすすめです。都心の喧騒から少し離れた便利な場所に住替え、郊外の戸建てを処分して便利な立地のマンションに住替えなど、これまでの暮らしから不要なものを少しずつ手放して身の回りをシンプルかつ機能的なライフスタイルに変えていこうとされるようなご夫婦にちょうどいい広さの間取りでもあります。相続の際にご家族に遺す物件としても魅力的だと思います。
★弊社売主物件★『ブリリア代官山プレステージ』「代官山」駅徒歩3分、「恵比寿」駅徒歩5分の好立地、新規内装リノベーション、66.61㎡の2LDK、陽当りの良い南西向き♪
★弊社売主物件★『グランアルト豊洲』2001年築、「豊洲」駅徒歩5分、総戸数293戸、3LDK、76.04㎡、新規内装リノベーション、陽当り良好、対面キッチン&ワイドリビング!
★おすすめ物件★『パークシティ中央湊ザ・タワー』隅田川が一望できる高層階住戸、3LDK、77.03㎡、新規内装リノベーション、仲介手数料無料!
★弊社売主物件★『スカイライトタワー』佃1丁目の高級タワーレジデンス!38階部分、隅田川VIEW住戸、82.55㎡のリノベーション済み2LDK+S!
★弊社売主物件★『アーバンドックパークシティ豊洲タワーA』豊洲エリアの人気物件!2LDK、60.17㎡の南向き、新規内装リノベーション、レインボーブリッジVIEW!豪華な共用施設も魅力!
HARUMI FLAG PARK VILLAGE(T棟50階)/ 仲介手数料50%OFF / 新築未入居 / 最上階&南向き
価格
4億4900万円
管理費
46,930円
間取り/面積
3LDK / 119.40m2
東京都中央区晴海
都営大江戸線 勝どき駅 から 徒歩18分パークタワー晴海(48階)/ 仲介手数料30%OFF / 2019年築 / 永久眺望の最上階南向き
価格
4億1000万円
管理費
34,470円
間取り/面積
3LDK / 106.05m2
東京都中央区晴海
東京メトロ有楽町線 月島駅 から 徒歩12分
HARUMI FLAG SUN VILLAGE(T棟48階)/ 仲介手数料30%OFF / 新築未入居 / 南向き77.79㎡
価格
3億500万円
管理費
30,020円
間取り/面積
3LDK / 77.79m2
東京都中央区晴海
都営大江戸線 勝どき駅 から 徒歩17分パークタワー勝どきサウス(45階)/ 仲介手数料50%OFF / 高層階の角住戸 / 浜離宮・築地再開発VIEW
価格
3億4700万円
管理費
26,560円
間取り/面積
3LDK / 76.32m2
東京都中央区勝どき
都営大江戸線 勝どき駅 から 徒歩2分
HARUMI FLAG SEA VILLAGE(E棟11階)/ 仲介手数料30%OFF / 2023年築 / レインボーブリッジを望む南東向
価格
2億2980万円
管理費
33,180円
間取り/面積
4LDK / 105.34m2
東京都中央区晴海
都営大江戸線 勝どき駅 から 徒歩16分ベイサイドタワー晴海(33階)/ 仲介手数料50%OFF / 最上階の南向き / 眺望良好
価格
2億9580万円
管理費
29,225円
間取り/面積
3LDK / 72.40m2
東京都中央区晴海
都営大江戸線 勝どき駅 から 徒歩10分THE TOKYO TOWERS MID TOWER(56階)/ 仲介手数料無料 / 未内装物件 / 東京湾・レインボーブリッジビュー
価格
2億4800万円
管理費
19,330円
間取り/面積
3LDK / 94.28m2
東京都中央区勝どき
都営大江戸線 勝どき駅 から 徒歩6分パークホームズ代々木西原(6階)当社売主物件 / 新築未入居物件 / 見晴らしの良い最上階の東南向き
価格
2億4800万円
管理費
24,910円
間取り/面積
3LDK / 72.40m2
東京都渋谷区西原
京王京王線 幡ヶ谷駅 から 徒歩5分パークタワー晴海(6階)/ 仲介手数料40%OFF / 未内装物件 / 永久眺望の南向き
価格
2億2800万円
管理費
26,930円
間取り/面積
3LDK / 82.85m2
東京都中央区晴海
東京メトロ有楽町線 月島駅 から 徒歩11分ザ・パークハウス晴海タワーズ クロノレジデンス(14階)/ 仲介手数料無料 / リノベーション済 / 運河ビューの南西角住戸
価格
2億800万円
管理費
25,050円
間取り/面積
3LDK / 84.33m2
東京都中央区晴海
都営大江戸線 勝どき駅 から 徒歩11分リガーレ日本橋人形町(7階)/ 仲介手数料無料 / リノベーション実施 / 人形町アドレス
価格
1億7990万円
管理費
22,550円
間取り/面積
2SLDK / 74.91m2
東京都中央区日本橋人形町
東京メトロ半蔵門線 水天宮前駅 から 徒歩2分アーバンドックパークシティ豊洲タワーA棟(39階)/ 仲介手数料無料 / リノベーション済 / 眺望良好な部屋位置
価格
1億9400万円
管理費
24,760円
間取り/面積
2LDK / 80.38m2
東京都江東区豊洲
東京メトロ有楽町線 豊州駅 から 徒歩6分センチュリーパークタワー(17階)/ 仲介手数料無料 / 新規内装リノベーション済 / 隅田川を望む部屋位置
価格
1億8990万円
管理費
31,100円
間取り/面積
3SLDK / 90.15m2
東京都中央区佃
東京メトロ有楽町線 月島駅 から 徒歩9分ブランズタワー豊洲(23階)/ 仲介手数料30%OFF / 2021年築 / 眺望良好な上階角住戸
価格
2億1800万円
管理費
32,300円
間取り/面積
2LDK / 85.57m2
東京都江東区豊洲
東京メトロ有楽町線 豊州駅 から 徒歩4分THE TOKYO TOWERS SEA TOWER(50階)/ 仲介手数料無料 / 新規内装リノベーション / 豪華な共用部分&共用施設
価格
1億8000万円
管理費
18,270円
間取り/面積
2SLDK / 89.14m2
東京都中央区勝どき
都営大江戸線 勝どき駅 から 徒歩6分ザ・パークハウス晴海タワーズ ティアロレジデンス(3階)/ 仲介手数料30%OFF / 未内装物件 / 102.12㎡の3LDK
価格
1億7980万円
管理費
32,660円
間取り/面積
3LDK / 102.13m2
東京都中央区晴海
都営大江戸線 勝どき駅 から 徒歩13分パークタワー晴海(28階)/ 仲介手数料50%OFF / 未内装物件 / 採光面の広いワイドスパン住戸
価格
1億9980万円
管理費
26,530円
間取り/面積
3LDK / 81.64m2
東京都中央区晴海
東京メトロ有楽町線 月島駅 から 徒歩11分アーバンドックパークシティ豊洲タワーA(37階)/ 仲介手数料無料 / 新規内装リノベーション / 眺望良好な部屋位置
価格
1億7990万円
管理費
21,990円
間取り/面積
2LDK / 71.38m2
東京都江東区豊洲
東京メトロ有楽町線 豊州駅 から 徒歩6分ドゥ・トゥール ウエスト棟 ≪DEUX TOURS CANAL & SPA WEST≫(40階)仲介手数料50%OFF / 室内コンディション良好 / 東京湾VIEWの南向き
価格
1億9880万円
管理費
22,018円
間取り/面積
2LDK / 70.70m2
東京都中央区晴海
都営大江戸線 勝どき駅 から 徒歩5分パークタワー晴海(12階)/ 仲介手数料無料 / 新規内装リノベーション / 永久眺望の南向き
価格
1億6980万円
管理費
22,780円
間取り/面積
3LDK / 70.09m2
東京都中央区晴海
東京メトロ有楽町線 月島駅 から 徒歩12分THE TOKYO TOWERS SEA TOWER(48階)/ 仲介手数料20%OFF / 未内装物件 / 眺望良好な上層階
価格
1億6280万円
管理費
17,810円
間取り/面積
2LDK / 86.86m2
東京都中央区勝どき
都営大江戸線 勝どき駅 から 徒歩7分パークタワー晴海(45階)/ 仲介手数料無料 / 2019年築 / 東京湾ビュー・永久眺望の南向き
価格
1億7900万円
管理費
23,020円
間取り/面積
2LDK / 70.84m2
東京都中央区晴海
東京メトロ有楽町線 月島駅 から 徒歩12分ブランズタワー豊洲(29階)/ 仲介手数料30%OFF / 2021年築 / 富士山VIEWの南西向き
価格
1億6980万円
管理費
23,200円
間取り/面積
2LDK / 58.02m2
東京都江東区豊洲
東京メトロ有楽町線 豊州駅 から 徒歩4分シティタワーズ豊洲ザ・ツイン サウスタワー(16階)/ 仲介手数料無料 / 南西角部屋 / 87.44㎡の未内装物件
価格
1億7900万円
管理費
21,140円
間取り/面積
1R / 87.44m2
東京都江東区豊洲
東京メトロ有楽町線 豊州駅 から 徒歩4分シティタワーズ豊洲ザ・シンボル(23階)/ 仲介手数料無料 / 東南角部屋 / 82.35㎡の3LDK
価格
1億7500万円
管理費
19,170円
間取り/面積
3LDK / 82.35m2
東京都江東区豊洲
東京メトロ有楽町線 豊州駅 から 徒歩7分センチュリーパークタワー(43階)/ 仲介手数料無料 / 新規内装リノベーション済 / 隅田川を望む高層階
価格
1億6800万円
管理費
25,600円
間取り/面積
2LDK / 74.13m2
東京都中央区佃
東京メトロ有楽町線 月島駅 から 徒歩8分パークタワー晴海(31階)/ 仲介手数料30%OFF / 未内装物件 / 永久眺望の南向き
価格
1億6200万円
管理費
23,020円
間取り/面積
3LDK / 70.84m2
東京都中央区晴海
東京メトロ有楽町線 月島駅 から 徒歩11分パークタワー勝どきサウス(41階)/ 仲介手数料30%OFF / 2023年築 / 総戸数1665戸
価格
1億6990万円
管理費
19,740円
間取り/面積
2LDK / 56.71m2
東京都中央区勝どき
都営大江戸線 勝どき駅 から 徒歩2分THE TOKYO TOWERS MID TOWER(37階)/ 仲介手数料無料 / 新規内装リノベーション / 73.94㎡の3LDK
価格
1億5799万円
管理費
15,160円
間取り/面積
3LDK / 73.94m2
東京都中央区勝どき
都営大江戸線 勝どき駅 から 徒歩6分センチュリーパークタワー(37階)/ 仲介手数料無料 / 新規内装リノベーション済 / 隅田川を望む部屋位置
価格
1億4990万円
管理費
26,900円
間取り/面積
3LDK / 78.11m2
東京都中央区佃
東京メトロ有楽町線 月島駅 から 徒歩9分ブランズタワー豊洲(27階)/ 仲介手数料30%OFF / 2021年築 / 晴海運河VIEWの北西向き
価格
1億4980万円
管理費
23,000円
間取り/面積
2LDK / 57.73m2
東京都江東区豊洲
東京メトロ有楽町線 豊州駅 から 徒歩4分プラウドタワー東雲キャナルコート(25階) / 仲介手数料無料 / リノベーション済 / レインボーブリッジビュー
価格
1億4000万円
管理費
21,762円
間取り/面積
2LDK / 84.25m2
東京都江東区東雲
東京メトロ有楽町線 豊州駅 から 徒歩12分晴海アイランドトリトンスクエアビュータワー(43階)/ 仲介手数料無料 / 新規内装リノベーション / 高層階の南西向き住戸
価格
1億4000万円
管理費
16,310円
間取り/面積
2SLDK / 84.45m2
東京都中央区晴海
東京メトロ有楽町線 月島駅 から 徒歩6分パークタワー晴海(45階)/ 仲介手数料30%OFF / 室内コンディション良好 / 永久眺望の南向き
価格
1億5550万円
管理費
20,510円
間取り/面積
2LDK / 63.10m2
東京都中央区晴海
東京メトロ有楽町線 月島駅 から 徒歩12分パークタワー晴海(36階)/ 仲介手数料無料 / リノベーション実施 / スカイツリービューの部屋位置
価格
1億5599万円
管理費
22,510円
間取り/面積
2LDK / 69.25m2
東京都中央区晴海
東京メトロ有楽町線 月島駅 から 徒歩12分パークタワー晴海(30階)/ 仲介手数料無料 / リノベーション実施 / 眺望良好な部屋位置
価格
1億4580万円
管理費
22,040円
間取り/面積
3LDK / 67.82m2
東京都中央区晴海
東京メトロ有楽町線 月島駅 から 徒歩12分スカイライトタワー(38階)/ 弊社売主物件 / リノベーション実施 / 隅田川花火大会を望む部屋位置
価格
1億4490万円
管理費
36,500円
間取り/面積
2SLDK / 82.55m2
東京都中央区佃
東京メトロ有楽町線 月島駅 から 徒歩8分ザ・パークハウス晴海タワーズ クロノレジデンス(15階)/ 仲介手数料無料 / リノベーション実施 / レインボーブリッジVIEW
価格
1億5480万円
管理費
22,120円
間取り/面積
3LDK / 74.47m2
東京都中央区晴海
都営大江戸線 勝どき駅 から 徒歩11分
サンクレスト茅場町(4階)/ 仲介手数料無料 / リノベーション実施 / 109㎡超の大型3LDK
価格
1億2990万円
管理費
30,810円
間取り/面積
3LDK / 109.25m2
東京都中央区新川
東京メトロ東西線 茅場町駅 から 徒歩6分キャナルファーストタワー(27階)/ 仲介手数料無料 / リノベーション済 / 東京ゲートブリッジビュー
価格
1億3500万円
管理費
17,000円
間取り/面積
3LDK / 80.57m2
東京都江東区東雲
東京メトロ有楽町線 辰巳駅 から 徒歩9分月島ホームズ(7階)/ 仲介手数料無料 / リノベーション実施 / リバーサイドマンション
価格
1億1999万円
管理費
9,450円
間取り/面積
3LDK / 72.63m2
東京都中央区月島
東京メトロ有楽町線 月島駅 から 徒歩2分エンゼルパークソレイユ住吉(5階)/ 仲介手数料50%OFF / リノベーション実施 / 南西角住戸
価格
1億490万円
管理費
11,195円
間取り/面積
2SLDK / 80.67m2
東京都江東区扇橋
都営新宿線 住吉駅 から 徒歩10分
HARUMI FLAG SUN VILLAGE(F棟)(4階)2LDKタイプ / 65.12㎡ / 仲介手数料30%OFF
価格
1億2980万円
管理費
14,010円
間取り/面積
2LDK / 65.12m2
東京都中央区晴海
都営大江戸線 勝どき駅 から 徒歩18分シティタワーズ豊洲ザ・ツイン サウスタワー(35階)/ 仲介手数料30%OFF / リノベーション実施 / 眺望良好な上層階
価格
1億490万円
管理費
13,340円
間取り/面積
1LDK / 52.50m2
東京都江東区豊洲
東京メトロ有楽町線 豊州駅 から 徒歩5分ファミール月島グランスイートタワー(7階)/ 仲介手数料無料 / 新規内装リノベーション / 「月島」駅徒歩1分
価格
1億999万円
管理費
11,900円
間取り/面積
2LDK / 50.24m2
東京都中央区佃
東京メトロ有楽町線 月島駅 から 徒歩1分晴海アイランドトリトンスクエアビュータワー(29階)/ 仲介手数料20%OFF / 新規内装リノベーション / 日当たり・眺望良好
価格
1億1280万円
管理費
11,160円
間取り/面積
1SLDK / 57.78m2
東京都中央区晴海
東京メトロ有楽町線 月島駅 から 徒歩6分勝どきザ・タワー(36階)/ 仲介手数料無料 / 新規内装リノベーション / 眺望良好な部屋位置
価格
1億5000万円
管理費
14,090円
間取り/面積
2LDK / 58.94m2
東京都中央区勝どき
都営大江戸線 勝どき駅 から 徒歩7分キャナルワーフタワーズ WEST(7階)/ 仲介手数料無料 / リノベーション実施 / 豊洲運河を望む角住戸
価格
1億2980万円
管理費
15,400円
間取り/面積
3LDK / 86.17m2
東京都江東区豊洲
東京メトロ有楽町線 豊州駅 から 徒歩12分セザール本所吾妻橋(4階)/ 仲介手数料無料 / リノベーション済 / 浅草エリアが生活圏
価格
7699万円
管理費
21,250円
間取り/面積
3LDK / 62.89m2
東京都墨田区本所
都営浅草線 本所吾妻橋駅 から 徒歩6分
HARUMI FLAG SUN VILLAGE(T棟40階)/ 仲介手数料無料 / 新築未入居 / 南西角住戸
価格
3億4980万円
管理費
35,810円
間取り/面積
3LDK / 92.76m2
東京都中央区晴海
都営大江戸線 勝どき駅 から 徒歩18分アップルタワー東京キャナルコート(41階)/ 仲介手数料30%OFF / 未内装物件 / 眺望良好な部屋位置
価格
2億3800万円
管理費
31,200円
間取り/面積
3LDK / 130.07m2
東京都江東区東雲
東京メトロ有楽町線 辰巳駅 から 徒歩8分
HARUMI FLAG PARK VILLAGE(T棟18階)/ 仲介手数料無料 / 新築未入居 / 北東角住戸
価格
1億9800万円
管理費
30,970円
間取り/面積
3LDK / 78.20m2
東京都中央区晴海
都営大江戸線 勝どき駅 から 徒歩18分センチュリーパークタワー(47階)/ 仲介手数料無料 / 新規内装リノベーション / 隅田川ビュー
価格
1億6990万円
管理費
26,900円
間取り/面積
2LDK / 78.11m2
東京都中央区佃
東京メトロ有楽町線 月島駅 から 徒歩8分ザ・パークハウス晴海タワーズ クロノレジデンス(38階)/ 仲介手数料無料 / リノベーション済 / 眺望良好な部屋位置
価格
1億5980万円
管理費
22,400円
間取り/面積
2LDK / 75.42m2
東京都中央区晴海
都営大江戸線 勝どき駅 から 徒歩12分
HARUMI FLAG SUN VILLAGE(T棟16階)/ 仲介手数料無料 / 新築未入居 / 眺望良好な部屋位置
価格
1億5980万円
管理費
27,830円
間取り/面積
3LDK / 74.12m2
東京都中央区晴海
都営大江戸線 勝どき駅 から 徒歩18分
HARUMI FLAG PARK VILLAGE(T棟7階)/ 仲介手数料無料 / 新築未入居 / 南向き南面3室
価格
1億4980万円
管理費
29,220円
間取り/面積
3LDK / 74.33m2
東京都中央区晴海
都営大江戸線 勝どき駅 から 徒歩18分コスモ東京ベイタワー(17階)/ 仲介手数料20%OFF / リフォーム履歴あり / 眺望良好な部屋位置
価格
1億3980万円
管理費
16,900円
間取り/面積
3LDK / 77.99m2
東京都中央区勝どき
都営大江戸線 勝どき駅 から 徒歩10分HARUMI FLAG PARK VILLAGE(T棟50階)/ 仲介手数料50%OFF / 新築未入居 / 最上階プレミアムフロア
価格
2億4800万円
管理費
31,570円
間取り/面積
2LDK / 80.32m2
東京都中央区晴海
都営大江戸線 勝どき駅 から 徒歩15分グランアルト豊洲(10階)/ 弊社売主物件 / 新規内装リノベーション済 / 豊洲エリアの駅近大規模物件
価格
1億3800万円
管理費
14,600円
間取り/面積
3LDK / 76.04m2
東京都江東区豊洲
東京メトロ有楽町線 豊州駅 から 徒歩5分シティタワーズ東京ベイ セントラルタワー(15階)/ 仲介手数料無料 / 2019年築 / 全室バルコニーに面したお部屋
価格
1億6200万円
管理費
26,360円
間取り/面積
3LDK / 70.41m2
東京都江東区有明
ゆりかもめ 有明駅 から 徒歩5分勝どきザ・タワー(36階)/ 仲介手数料無料 / 新規内装リノベーション / 東京タワーを望む部屋位置
価格
1億8000万円
管理費
17,530円
間取り/面積
2LDK / 73.32m2
東京都中央区勝どき
都営大江戸線 勝どき駅 から 徒歩7分THE TOKYO TOWERS SEA TOWER(44階)/ 仲介手数料無料 / リノベーション済 / 眺望良好な高層階
価格
1億7000万円
管理費
16,090円
間取り/面積
2LDK / 78.47m2
東京都中央区勝どき
都営大江戸線 勝どき駅 から 徒歩7分ザ・パークハウス晴海タワーズ ティアロレジデンス(32階)/ 仲介手数料30%OFF / 新規内装リノベーション / 永久眺望の南向き
価格
2億9890万円
管理費
27,390円
間取り/面積
3LDK / 85.65m2
東京都中央区晴海
都営大江戸線 勝どき駅 から 徒歩13分パークシティ中央湊ザ・タワー(31階)/ 仲介手数料無料 / 新規内装リノベーション / 都心方面を望む西向き
価格
2億4990万円
管理費
26,880円
間取り/面積
3LDK / 72.49m2
東京都中央区湊
東京メトロ日比谷線 八丁堀駅 から 徒歩6分パークタワー晴海(14階)仲介手数料無料 / 新規内装リフォーム / 西向き&角住戸
価格
1億8890万円
管理費
26,740円
間取り/面積
2LDK / 82.27m2
東京都中央区晴海
東京メトロ有楽町線 月島駅 から 徒歩12分アイ・マークタワー(25階)/ 仲介手数料無料 / リノベーション済 / 駅1分のタワーマンション
価格
2億980万円
管理費
25,700円
間取り/面積
3LDK / 85.43m2
東京都中央区月島
東京メトロ有楽町線 月島駅 から 徒歩1分サンウッド東京茅場町パークフロント(2階)/ 仲介手数料無料 / リノベーション実施 / 複数路線が利用可能
価格
1億4490万円
管理費
11,870円
間取り/面積
3LDK / 62.81m2
東京都中央区新川
東京メトロ日比谷線 茅場町駅 から 徒歩6分ブランズ明石町(4階)/ 仲介手数料無料 / リノベーション済 / 住環境良好な明石町
価格
1億3980万円
管理費
17,400円
間取り/面積
2LDK / 60.70m2
東京都中央区明石町
東京メトロ有楽町線 新富町駅 から 徒歩6分晴海アイランドトリトンスクエアビュータワー(22階)/ 仲介手数料無料 / 新規内装リノベーション / 日当たり・眺望良好な角住戸
価格
1億3280万円
管理費
13,250円
間取り/面積
2LDK / 68.21m2
東京都中央区晴海
東京メトロ有楽町線 月島駅 から 徒歩6分八丁堀アムフラット(10階)/ 仲介手数料無料 / 新規内装リノベーション / 西向き三面採光の角住戸
価格
1億999万円
管理費
13,900円
間取り/面積
2LDK / 54.87m2
東京都中央区湊
東京メトロ日比谷線 八丁堀駅 から 徒歩4分ザ・パークハウス晴海タワーズ クロノレジデンス(29階)/ 仲介手数料30%OFF / 未内装物件 / 南向きの角住戸
価格
1億9800万円
管理費
22,370円
間取り/面積
2LDK / 75.29m2
東京都中央区晴海
都営大江戸線 勝どき駅 から 徒歩11分パークタワー晴海(14階)/ 仲介手数料無料 / 新規内装リフォーム済み / 収納充実、大型2LDK
価格
1億7800万円
管理費
13,880円
間取り/面積
2LDK / 81.64m2
東京都中央区晴海
東京メトロ有楽町線 月島駅 から 徒歩12分晴海アイランドトリトンスクエアビュータワー(40階)/ 仲介手数料20%OFF / 未内装物件 / 東京タワーVIEW
価格
1億3980万円
管理費
17,640円
間取り/面積
3LDK / 91.42m2
東京都中央区晴海
東京メトロ有楽町線 月島駅 から 徒歩6分HARUMI FLAG SUN VILLAGE(T棟33階)/ 仲介手数料30%OFF / 新築未入居物件 / 南向き3LDK
価格
2億800万円
管理費
32,100円
間取り/面積
3LDK / 83.18m2
東京都中央区晴海
都営大江戸線 勝どき駅 から 徒歩18分シティタワーズ豊洲ザ・シンボル(41階)/ 仲介手数料無料 / リノベーション済 / 眺望良好な高層階
価格
1億8500万円
管理費
22,207円
間取り/面積
2LDK / 79.54m2
東京都江東区豊洲
東京メトロ有楽町線 豊州駅 から 徒歩6分シティタワーズ豊洲ザ・ツイン サウスタワー(44階)/ 仲介手数料無料 / 新規内装リノベーション / 眺望良好な東向き住戸
価格
1億7500万円
管理費
19,240円
間取り/面積
2LDK / 79.11m2
東京都江東区豊洲
東京メトロ有楽町線 豊州駅 から 徒歩5分パークタワー晴海(46階)/ 仲介手数料無料 / 新規内装リフォーム済み / 眺望良好な部屋位置
価格
1億6800万円
管理費
22,510円
間取り/面積
2LDK / 69.25m2
東京都中央区晴海
東京メトロ有楽町線 月島駅 から 徒歩12分シティタワーズ豊洲ザ・シンボル(17階)/ 仲介手数料無料 / リノベーション済 / 南向き3LDK
価格
1億5800万円
管理費
20,307円
間取り/面積
3LDK / 70.15m2
東京都江東区豊洲
東京メトロ有楽町線 豊州駅 から 徒歩6分クレストシティレジデンス(14階)/ 仲介手数料無料 / リノベーション実施 / 隅田川・浜離宮恩賜庭園ビュー
価格
1億4480万円
管理費
16,900円
間取り/面積
3LDK / 70.31m2
東京都中央区勝どき
都営大江戸線 勝どき駅 から 徒歩7分勝どきビュータワー (46階)/ 仲介手数料無料 / リノベーション済 / 駅直結のタワーマンション
価格
1億5900万円
管理費
15,120円
間取り/面積
2LDK / 54.68m2
東京都中央区勝どき
都営大江戸線 勝どき駅 から 徒歩1分晴海アイランドトリトンスクエアビュータワー(43階)/ 仲介手数料30%OFF / 未内装物件 / 眺望良好な南西向き
価格
1億3700万円
管理費
18,160円
間取り/面積
3LDK / 94.12m2
東京都中央区晴海
東京メトロ有楽町線 月島駅 から 徒歩6分
レグノ・ヴェール明石町(10階)/ 仲介手数料無料 / 新規内装リノベーション / 隅田川VIEWの南向き
価格
1億1980万円
管理費
16,600円
間取り/面積
2LDK / 55.47m2
東京都中央区明石町
東京メトロ日比谷線 築地駅 から 徒歩8分HARUMI FLAG PARK VILLAGE(T棟30階)/ 仲介手数料無料 / 新築未入居 / 東南角部屋85.83㎡
価格
3億1980万円
管理費
33,730円
間取り/面積
2LDK / 85.83m2
東京都中央区晴海
都営大江戸線 勝どき駅 から 徒歩15分勝どきザ・タワー(28階)/ 仲介手数料無料 / 新規内装リノベーション / 浜離宮・東京タワーVIEW
価格
2億4800万円
管理費
20,790円
間取り/面積
3LDK / 87.00m2
東京都中央区勝どき
都営大江戸線 勝どき駅 から 徒歩7分パークタワー勝どきサウス(37階)/ 仲介手数料50%OFF / 2023年築 / 浜離宮・築地再開発VIEW
価格
2億5680万円
管理費
26,210円
間取り/面積
3LDK / 75.31m2
東京都中央区勝どき
都営大江戸線 勝どき駅 から 徒歩2分HARUMI FLAG PARK VILLAGE(T棟35階)/ 仲介手数料無料 / 新築未入居 / 北西角部屋3LDK
価格
2億3480万円
管理費
30,970円
間取り/面積
3LDK / 78.82m2
東京都中央区晴海
都営大江戸線 勝どき駅 から 徒歩15分パークタワー勝どきサウス(28階)/ 仲介手数料50%OFF / 2023年築 / 浜離宮・築地再開発VIEW
価格
2億3980万円
管理費
28,000円
間取り/面積
3LDK / 72.75m2
東京都中央区勝どき
都営大江戸線 勝どき駅 から 徒歩2分サンクタス築地(10階)/ 仲介手数料無料 / リノベーション済 / 4駅4路線利用可能
価格
1億8480万円
管理費
12,300円
間取り/面積
3LDK / 83.10m2
東京都中央区築地
東京メトロ日比谷線 築地駅 から 徒歩5分パークホームズ豊洲ザ レジデンス(12階)/ 仲介手数料無料 / 免震構造の大規模レジデンス / 南東・南西向き角住戸
価格
1億9200万円
管理費
21,540円
間取り/面積
3LDK / 81.27m2
東京都江東区豊洲
東京メトロ有楽町線 豊州駅 から 徒歩5分アーバンドックパークシティ豊洲タワーA(36階)/ 仲介手数料30%OFF / 新規内装リノベーション / 充実の共用施設
価格
1億5980万円
管理費
21,990円
間取り/面積
2LDK / 71.38m2
東京都江東区豊洲
東京メトロ有楽町線 豊州駅 から 徒歩6分シティタワーズ豊洲ザ・シンボル(29階)/ 仲介手数料無料 / 新規内装リノベーション / 眺望良好な東向き
価格
1億4490万円
管理費
21,200円
間取り/面積
2LDK / 67.03m2
東京都江東区豊洲
東京メトロ有楽町線 豊州駅 から 徒歩6分クレストシティレジデンス(18階)/ 仲介手数料20%OFF / 未内装物件 / 隅田川・浜離宮恩賜庭園ビュー
価格
1億3990万円
管理費
16,900円
間取り/面積
2LDK / 70.31m2
東京都中央区勝どき
都営大江戸線 勝どき駅 から 徒歩8分コスモ東京ベイタワー(13階)/ 仲介手数料無料 / リノベーション実施 / 眺望良好な部屋位置
価格
1億3990万円
管理費
18,600円
間取り/面積
3LDK / 85.49m2
東京都中央区勝どき
都営大江戸線 勝どき駅 から 徒歩10分Brillia THE TOWER 東京八重洲アベニュー(13階)/ 仲介手数料無料 / 新規内装リノベーション / 2017年築
価格
1億3699万円
管理費
15,100円
間取り/面積
1LDK / 41.46m2
東京都中央区新川
東京メトロ日比谷線 八丁堀駅 から 徒歩1分THE TOYOSU TOWER(20階)/ 仲介手数料無料 / 新規内装リノベーション / 免震構造のタワーマンション
価格
1億2690万円
管理費
21,200円
間取り/面積
2LDK / 62.55m2
東京都江東区豊洲
東京メトロ有楽町線 豊州駅 から 徒歩7分ブリリア代官山プレステージ(6階)当社売主物件 / 新規リフォーム箇所多数 / 仲介手数料不要
価格
2億3800万円
管理費
29,000円
間取り/面積
2LDK / 66.61m2
東京都渋谷区恵比寿西
東急東横線 代官山駅 から 徒歩3分アスコットパーク日本橋小伝馬町(11階)/ 仲介手数料無料 / リノベーション済 / 日本橋アドレス
価格
1億9990万円
管理費
15,230円
間取り/面積
3LDK / 73.48m2
東京都中央区日本橋小伝馬町
東京メトロ日比谷線 小伝馬町駅 から 徒歩2分パークタワー晴海(45階)/ 仲介手数料無料 / リノベーション済 / 眺望良好な南向き上層階
価格
2億790万円
管理費
25,540円
間取り/面積
3LDK / 78.59m2
東京都中央区晴海
東京メトロ有楽町線 月島駅 から 徒歩12分勝どきザ・タワー(33階)/ 仲介手数料無料 / 新規内装リノベーション / 北東向きキャナルVIEW
価格
1億9900万円
管理費
17,230円
間取り/面積
3LDK / 72.09m2
東京都中央区勝どき
都営大江戸線 勝どき駅 から 徒歩7分ザ・パークハウス晴海タワーズ クロノレジデンス(46階)/ 仲介手数料無料 / 新規内装リノベーション / 眺望の良いプレミアムフロア
価格
2億500万円
管理費
24,240円
間取り/面積
2SLDK / 81.61m2
東京都中央区晴海
都営大江戸線 勝どき駅 から 徒歩11分THE TOKYO TOWERS MID TOWER(46階)/ 仲介手数料無料 / 新規内装リノベーション / 眺望良好な上層階
価格
1億8990万円
管理費
16,500円
間取り/面積
2LDK / 80.48m2
東京都中央区勝どき
都営大江戸線 勝どき駅 から 徒歩7分晴海アイランドトリトンスクエアビュータワー(49階)/ 仲介手数料無料 / リノベーション済 / 眺望良好な上階角住戸
価格
1億5500万円
管理費
14,970円
間取り/面積
3LDK / 77.52m2
東京都中央区晴海
東京メトロ有楽町線 月島駅 から 徒歩6分THE TOKYO TOWERS MID TOWER(35階)/ 仲介手数料20%OFF / 未内装物件 / 眺望良好な上層階
価格
1億5950万円
管理費
16,500円
間取り/面積
2LDK / 80.48m2
東京都中央区勝どき
都営大江戸線 勝どき駅 から 徒歩6分ブリリア日本橋浜町(10階)仲介手数料30%OFF / 未内装物件 / 南東向き&三面採光の角部屋
価格
1億5980万円
管理費
21,500円
間取り/面積
3LDK / 65.71m2
東京都中央区日本橋浜町
都営新宿線 浜町駅 から 徒歩2分リビオ清澄白河(6階)/ 仲介手数料無料 / 新規内装リノベーション / 南向きの3LDK
価格
1億4499万円
管理費
13,120円
間取り/面積
3LDK / 64.01m2
東京都江東区清澄
東京メトロ半蔵門線 清澄白河駅 から 徒歩6分HARUMI FLAG PARK VILLAGE(T棟17階)/ 仲介手数料無料 / 新築未入居 / 即入居可能
価格
1億5800万円
管理費
24,100円
間取り/面積
2LDK / 61.33m2
東京都中央区晴海
都営大江戸線 勝どき駅 から 徒歩18分
グランスイート日本橋エイペックス(6階)/ 仲介手数料無料 / 未内装物件 / 日本橋アドレス
価格
1億3800万円
管理費
12,900円
間取り/面積
2LDK / 60.39m2
東京都中央区東日本橋
都営新宿線 馬喰横山駅 から 徒歩2分HARUMI FLAG SUN VILLAGE(T棟41階)/ 仲介手数料50%OFF / 新築未入居 / 南向き、南西角部屋
価格
4億4000万円
管理費
35,810円
間取り/面積
3LDK / 92.76m2
東京都中央区晴海
都営大江戸線 勝どき駅 から 徒歩18分HARUMI FLAG PARK VILLAGE(T棟26階)/ 仲介手数料40%OFF / 新築未入居 / 南向き、陽当り眺望良好
価格
2億6000万円
管理費
30,970円
間取り/面積
3LDK / 78.82m2
東京都中央区晴海
都営大江戸線 勝どき駅 から 徒歩18分HARUMI FLAG PARK VILLAGE(T棟39階)/ 仲介手数料50%OFF / 新築未入居 / 南向き、東南角部屋
価格
3億4800万円
管理費
33,730円
間取り/面積
3LDK / 85.83m2
東京都中央区晴海
都営大江戸線 勝どき駅 から 徒歩18分パークタワー晴海(28階)/ 仲介手数料30%OFF / 未内装物件 / 永久眺望の南向き
価格
2億3000万円
管理費
25,540円
間取り/面積
3LDK / 78.59m2
東京都中央区晴海
東京メトロ有楽町線 月島駅 から 徒歩11分
クレヴィア東京八丁堀新川ザ・レジデンス(4階)/ 仲介手数料無料 / リノベーション済 / 複数路線が利用可能
価格
1億8990万円
管理費
18,500円
間取り/面積
3 / 72.96m2
東京都中央区新川
東京メトロ日比谷線 八丁堀駅 から 徒歩4分パークハウス清澄白河タワー(21階)/ 仲介手数料30%OFF / リノベーション実施 / 清澄白河エリア
価格
1億6790万円
管理費
18,800円
間取り/面積
3LDK / 80.82m2
東京都江東区白河
東京メトロ半蔵門線 清澄白河駅 から 徒歩6分
HARUMI FLAG PARK VILLAGE(F棟4階)/ 仲介手数料30%OFF / 室内コンディション良好 / キャナルVIEW
価格
1億5500万円
管理費
22,530円
間取り/面積
3LDK / 75.57m2
東京都中央区晴海
都営大江戸線 勝どき駅 から 徒歩18分ザ・パークハウス晴海タワーズ ティアロレジデンス(34階)/ 仲介手数料無料 / リノベーション済 / 眺望良好な南西角住戸
価格
1億8800万円
管理費
26,190円
間取り/面積
3LDK / 81.89m2
東京都中央区晴海
都営大江戸線 勝どき駅 から 徒歩13分
HARUMI FLAG PARK VILLAGE(B棟15階)/ 仲介手数料30%OFF / 室内コンディション良好 / オーシャンビュー
価格
1億3980万円
管理費
22,160円
間取り/面積
2LDK / 70.81m2
東京都中央区晴海
都営大江戸線 勝どき駅 から 徒歩22分パークタワー晴海(23階)/ 仲介手数料30%OFF / 賃貸中(定期借家契約) / 運河ビューの角住戸
価格
2億800万円
管理費
26,740円
間取り/面積
3LDK / 82.27m2
東京都中央区晴海
東京メトロ有楽町線 月島駅 から 徒歩11分イーストコモンズ清澄白河セントラルタワー(5階)/ 仲介手数料無料 / リノベーション実施 / 南東角住戸
価格
1億7800万円
管理費
27,700円
間取り/面積
3LDK / 90.50m2
東京都江東区白河
東京メトロ半蔵門線 清澄白河駅 から 徒歩8分シティタワーズ豊洲ザ・ツイン サウスタワー(28階)/ 仲介手数料無料 / リノベーション済 / 都心方面を望む上層階
価格
1億7080万円
管理費
18,710円
間取り/面積
3LDK / 78.27m2
東京都江東区豊洲
東京メトロ有楽町線 豊州駅 から 徒歩5分アーバンドックパークシティ豊洲タワーA(38階)/ 仲介手数料50%OFF / 新規内装リノベーション / 充実の共用施設
価格
1億4300万円
管理費
18,660円
間取り/面積
2LDK / 60.59m2
東京都江東区豊洲
東京メトロ有楽町線 豊州駅 から 徒歩6分ザ・パークハウス晴海タワーズ ティアロレジデンス(32階)/ 仲介手数料30%OFF / 未内装物件 / 北向き3LDK
価格
1億3480万円
管理費
23,730円
間取り/面積
3LDK / 74.20m2
東京都中央区晴海
都営大江戸線 勝どき駅 から 徒歩13分イーストコモンズ清澄白河セントラルタワー(4階)/ 仲介手数料無料 / リノベーション済 / 清澄白河エリアのタワーマンション
価格
1億3590万円
管理費
22,810円
間取り/面積
3LDK / 74.54m2
東京都江東区白河
東京メトロ半蔵門線 清澄白河駅 から 徒歩7分シティタワーズ東京ベイ セントラルタワー(28階)/ 仲介手数料無料 / 新規内装リノベーション / 眺望良好な南東向き上層階
価格
1億2800万円
管理費
20,600円
間取り/面積
2LDK / 54.24m2
東京都江東区有明
ゆりかもめ 有明駅 から 徒歩4分ザ・パークハウス晴海タワーズ ティアロレジデンス(29階)/ 仲介手数料30%OFF / 未内装物件 / 現況空室
価格
1億2480万円
管理費
21,970円
間取り/面積
3LDK / 68.64m2
東京都中央区晴海
都営大江戸線 勝どき駅 から 徒歩13分
HARUMI FLAG PARK VILLAGE(T棟37階)/ 仲介手数料30%OFF / 55.34㎡の2LDK / 晴海運河VIEW
価格
1億2500万円
管理費
22,900円
間取り/面積
2LDK / 55.34m2
東京都中央区晴海
都営大江戸線 勝どき駅 から 徒歩18分シティタワーズ豊洲ザ・シンボル(28階)/ 仲介手数料30%OFF / 未内装物件 / 北向き2LDK
価格
1億2980万円
管理費
17,707円
間取り/面積
2LDK / 62.31m2
東京都江東区豊洲
東京メトロ有楽町線 豊州駅 から 徒歩6分パークタワー勝どきミッド(14階)/ 仲介手数料20%OFF / 2023年築 / 「勝どき」駅直結
価格
1億3260万円
管理費
15,550円
間取り/面積
1LDK / 44.31m2
東京都中央区勝どき
都営大江戸線 勝どき駅 から 徒歩1分ルミネ東京日本橋(7階)/ 仲介手数料無料 / リノベーション済 / 複数路線が利用可能
価格
1億699万円
管理費
14,300円
間取り/面積
2LDK / 52.08m2
東京都中央区湊
東京メトロ日比谷線 八丁堀駅 から 徒歩3分ザ・パークハウス晴海タワーズ クロノレジデンス(27階)/ 仲介手数料50%OFF / リノベーション実施 / 眺望良好な部屋位置
価格
8890万円
管理費
12,640円
間取り/面積
1LDK / 42.53m2
東京都中央区晴海
都営大江戸線 勝どき駅 から 徒歩11分クレッセント東京ヴュータワー(3階)/ 仲介手数料無料 / 新規内装リノベーション / 隅田川ビューの部屋位置
価格
1億1800万円
管理費
16,200円
間取り/面積
3LDK / 59.08m2
東京都江東区新大橋
都営大江戸線 森下駅 から 徒歩5分HARUMI FLAG SUN VILLAGE(T棟43階)/ 仲介手数料無料 / 隣接住戸2室同時売却 / 富士山&レインボーブリッジVI
価格
4億9800万円
管理費
62,240円
間取り/面積
3LDK / 161.26m2
東京都中央区晴海
都営大江戸線 勝どき駅 から 徒歩18分パークタワー勝どきミッド(14階)/ 仲介手数料50%OFF / 「勝どき」駅直結 / 東南角部屋102.53㎡
価格
4億2000万円
管理費
36,480円
間取り/面積
3LDK / 102.53m2
東京都中央区勝どき
都営大江戸線 勝どき駅 から 徒歩1分THE TOKYO TOWERS SEA TOWER(57階)/ 仲介手数料無料 / 未内装物件 / 勝どきエリアのシンボルタワー
価格
3億3800万円
管理費
22,250円
間取り/面積
3LDK / 108.56m2
東京都中央区勝どき
都営大江戸線 勝どき駅 から 徒歩7分MID TOWER GRAND(26階)/ 仲介手数料50%OFF / 2020年築 / 北・東角住戸
価格
2億4900万円
管理費
22,830円
間取り/面積
2LDK / 68.56m2
東京都中央区月島
東京メトロ有楽町線 月島駅 から 徒歩2分シティタワー銀座東(19階)/ 仲介手数料50%OFF / 室内コンディション良好 / 北東角部屋
価格
2億4900万円
管理費
15,915円
間取り/面積
2LDK / 74.59m2
東京都中央区湊
東京メトロ日比谷線 八丁堀駅 から 徒歩5分
シティタワーズ東京ベイ ウエストタワー(30階)/ 仲介手数料無料 / リノベーション済 / 眺望良好な上層階角住戸
価格
2億3800万円
管理費
30,210円
間取り/面積
3LDK / 81.19m2
東京都江東区有明
ゆりかもめ 有明駅 から 徒歩3分ベイズタワー&ガーデン(31階)/ 仲介手数料無料 / 2016年築 / 最上階・南向きプレミアムフロア
価格
2億4100万円
管理費
30,760円
間取り/面積
3LDK / 88.67m2
東京都江東区豊洲
ゆりかもめ 新豊洲駅 から 徒歩6分パークシティ中央湊ザ タワー(13階)/ 仲介手数料無料 / リノベーション済 / 2017年(平成29年)築
価格
2億2300万円
管理費
21,670円
間取り/面積
3LDK / 62.11m2
東京都中央区湊
東京メトロ日比谷線 八丁堀駅 から 徒歩6分ブリリアタワー東京(14階)/ 仲介手数料無料 / リノベーション実施 / 商業施設「オリナス」併設
価格
1億9500万円
管理費
21,738円
間取り/面積
2LDK / 78.51m2
東京都墨田区太平
総武・中央緩行線 錦糸町駅 から 徒歩7分ブランズタワー豊洲(24階)/ 仲介手数料30%OFF / 2021年築 / 晴海運河VIEWの北西向き
価格
1億7980万円
管理費
25,900円
間取り/面積
2LDK / 64.86m2
東京都江東区豊洲
東京メトロ有楽町線 豊州駅 から 徒歩4分センチュリーパークタワー(6階)/ 仲介手数料無料 / リノベーション実施 / 隅田川ビューの部屋位置
価格
1億7980万円
管理費
26,200円
間取り/面積
3LDK / 75.90m2
東京都中央区佃
東京メトロ有楽町線 月島駅 から 徒歩9分プラウド清澄白河リバーサイド(14階)仲介手数料30%OFF / 2017年築 / 眺望良好な高層階の南西向き
価格
1億7000万円
管理費
15,100円
間取り/面積
3LDK / 71.45m2
東京都江東区清澄
東京メトロ半蔵門線 清澄白河駅 から 徒歩8分ウィルローズ月島(7階)/ 仲介手数料無料 / 2010年築(未内装) / 駅近マンション
価格
1億4700万円
管理費
18,000円
間取り/面積
2SLDK / 69.59m2
東京都中央区月島
東京メトロ有楽町線 月島駅 から 徒歩3分プラウド東陽町ガーデンズ(13階)仲介手数料無料 / 新規内装リノベーション / 最上階&南向き&4LDK
価格
1億3980万円
管理費
18,200円
間取り/面積
4LDK / 87.16m2
東京都江東区南砂
東京メトロ東西線 東陽町駅 から 徒歩15分イニシア両国(12階)/ 仲介手数料無料 / リノベーション済 / 南向き最上階
価格
9999万円
管理費
16,200円
間取り/面積
3LDK / 61.38m2
東京都墨田区石原
都営大江戸線 両国駅 から 徒歩9分住吉パーク・ホームズ(7階)/ 仲介手数料無料 / リノベーション実施 / 三井不動産旧分譲
価格
9480万円
管理費
13,400円
間取り/面積
3LDK / 61.05m2
東京都江東区猿江
東京メトロ半蔵門線 住吉駅 から 徒歩6分菊川パーク・ホームズ(3階)/ 仲介手数料無料 / リノベーション済 / 複数路線利用可能
価格
8480万円
管理費
17,220円
間取り/面積
3LDK / 62.40m2
東京都墨田区菊川
都営新宿線 菊川駅 から 徒歩3分センチュリーパークタワー(49階)/ 仲介手数料無料 / リノベーション実施 / 隅田川ビューの部屋位置
価格
3億9990万円
管理費
41,700円
間取り/面積
3LDK / 120.97m2
東京都中央区佃
東京メトロ有楽町線 月島駅 から 徒歩8分パークシティ中央湊ザ・タワー(20階)/ 仲介手数料無料 / 新規内装リノベーション / 隅田川を望む部屋位置
価格
3億4980万円
管理費
27,360円
間取り/面積
3LDK / 78.41m2
東京都中央区湊
東京メトロ日比谷線 八丁堀駅 から 徒歩6分ブリリアザ・タワー東京八重洲アベニュー(26階)/ 仲介手数料無料 / 新規内装リノベーション / 眺望良好な部屋位置
価格
2億8790万円
管理費
26,600円
間取り/面積
2LDK / 73.30m2
東京都中央区新川
東京メトロ日比谷線 八丁堀駅 から 徒歩4分ベイズタワー&ガーデン(5階)/ 仲介手数料20%OFF / 2016年築 / 水辺と緑を望む南西角住戸
価格
1億7980万円
管理費
29,980円
間取り/面積
3LDK / 86.41m2
東京都江東区豊洲
ゆりかもめ 新豊洲駅 から 徒歩6分シティタワーズ東京ベイ セントラルタワー(15階)/ 仲介手数料無料 / 新規内装リノベーション / 眺望良好な北西向き住戸
価格
1億8800万円
管理費
26,390円
間取り/面積
2LDK / 70.49m2
東京都江東区有明
ゆりかもめ 有明駅 から 徒歩4分シティタワーズ東京ベイ イーストタワー(30階)/ 仲介手数料無料 / 新規内装リノベーション / 高層階西向き住戸
価格
1億8800万円
管理費
27,200円
間取り/面積
3LDK / 72.76m2
東京都江東区有明
ゆりかもめ 有明駅 から 徒歩3分ガレリアグランデ(10階)/ 仲介手数料無料 / リノベーション済 / レインボーブリッジを望む部屋位置
価格
1億7990万円
管理費
20,800円
間取り/面積
2LDK / 89.69m2
東京都江東区有明
りんかい線 国際展示場駅 から 徒歩13分スカイズ タワー&ガーデン(33階)/ 仲介手数料30%OFF / 2015年築 / 北東向き
価格
1億6280万円
管理費
27,120円
間取り/面積
3LDK / 71.00m2
東京都江東区豊洲
ゆりかもめ 新豊洲駅 から 徒歩5分ブランズタワー豊洲(10階)/ 仲介手数料30%OFF / 2021年築 / 陽当り眺望良好な南東向き
価格
1億5800万円
管理費
24,400円
間取り/面積
2LDK / 61.15m2
東京都江東区豊洲
東京メトロ有楽町線 豊州駅 から 徒歩4分クレヴィア東京八丁堀Chuo Minato(4階)/ 仲介手数料無料 / リノベーション済 / 2020年(令和2年)築
価格
1億5999万円
管理費
27,700円
間取り/面積
3LDK / 62.85m2
東京都中央区湊
東京メトロ日比谷線 八丁堀駅 から 徒歩3分プライヴブルー東京(15階)/ 仲介手数料無料 / 新規内装リノベーション / 眺望の良い東向き
価格
1億4980万円
管理費
12,800円
間取り/面積
3LDK / 72.27m2
東京都江東区豊洲
東京メトロ有楽町線 豊州駅 から 徒歩5分
HARUMI FLAG PARK VILLAGE(F棟10階)/ 仲介手数料30%OFF / 室内コンディション良好 / キャナルVIEW
価格
1億4880万円
管理費
22,530円
間取り/面積
3LDK / 75.57m2
東京都中央区晴海
都営大江戸線 勝どき駅 から 徒歩18分勝どきザ・タワー(14階)/ 仲介手数料無料 / リノベーション済 / 2016年築
価格
1億3980万円
管理費
14,090円
間取り/面積
1SLDK / 58.98m2
東京都中央区勝どき
都営大江戸線 勝どき駅 から 徒歩7分ファミール月島グランスイートタワー(19階)/ 仲介手数料無料 / 新規内装リノベーション / 西・北角住戸
価格
1億6980万円
管理費
16,600円
間取り/面積
3LDK / 75.44m2
東京都中央区佃
東京メトロ有楽町線 月島駅 から 徒歩1分ガレリア・マーレ日本橋(10階)/ 仲介手数料無料 / リノベーション済 / 日本橋アドレス
価格
1億7499万円
管理費
13,320円
間取り/面積
2LDK / 66.63m2
東京都中央区東日本橋
都営浅草線 東日本橋駅 から 徒歩3分アイ・マークタワー(3階)/ 仲介手数料無料 / リノベーション済 / 駅1分のタワーマンション
価格
1億5990万円
管理費
23,200円
間取り/面積
2LDK / 77.48m2
東京都中央区月島
東京メトロ有楽町線 月島駅 から 徒歩1分プレミスト明石町(10階)/ 仲介手数料無料 / 新規内装リノベーション / 情緒漂う街並み
価格
1億4999万円
管理費
11,500円
間取り/面積
2LDK / 52.45m2
東京都中央区明石町
東京メトロ有楽町線 新富町駅 から 徒歩7分
HARUMI FLAG SUN VILLAGE(E棟13階)/ 仲介手数料30%OFF / 2023年築 / 82.84㎡の3LDKタイプ
価格
1億3980万円
管理費
26,260円
間取り/面積
3LDK / 82.84m2
東京都中央区晴海
都営大江戸線 勝どき駅 から 徒歩18分シティタワーズ豊洲ザ・シンボル(15階)/ 仲介手数料無料 / 新規内装リノベーション / キャナルVIEWの東向き
価格
1億3790万円
管理費
19,107円
間取り/面積
2LDK / 65.34m2
東京都江東区豊洲
東京メトロ有楽町線 豊州駅 から 徒歩6分W COMFORT TOWERS WEST(39階)/ 仲介手数料無料 / リノベーション実施 / 100㎡超の大型2SLDK
価格
1億9000万円
管理費
22,500円
間取り/面積
2SLDK / 113.02m2
東京都江東区東雲
東京メトロ有楽町線 辰巳駅 から 徒歩8分エフローレ日本橋(8階)/ 仲介手数料無料 / リノベーション実施 / 日本橋アドレス
価格
1億4980万円
管理費
10,950円
間取り/面積
2LDK / 57.91m2
東京都中央区日本橋大伝馬町
東京メトロ日比谷線 小伝馬町駅 から 徒歩3分シティタワーズ東京ベイ セントラルタワー(30階)/ 仲介手数料無料 / 新規内装リノベーション / 眺望良好な南東向き向き住戸
価格
1億2880万円
管理費
20,600円
間取り/面積
2LDK / 54.24m2
東京都江東区有明
ゆりかもめ 有明駅 から 徒歩4分
ピアース東京インプレイス(12階)/ 仲介手数料無料 / 新規内装リノベーション / 複数路線が利用可能
価格
1億3800万円
管理費
14,500円
間取り/面積
2LDK / 63.25m2
東京都中央区新川
東京メトロ日比谷線 八丁堀駅 から 徒歩3分オープンレジデンシア日本橋水天宮(2階)/ 仲介手数料無料 / リノベーション済 / 日本橋アドレス
価格
1億2480万円
管理費
15,330円
間取り/面積
2LDK / 54.74m2
東京都中央区日本橋蛎殻町
東京メトロ半蔵門線 水天宮前駅 から 徒歩3分
イニシア築地レジデンス(9階)仲介手数料50%OFF / 2021年築・空室 / 南東向き
価格
1億2800万円
管理費
15,500円
間取り/面積
2LDK / 54.11m2
東京都中央区築地
東京メトロ日比谷線 築地駅 から 徒歩6分月島ホームズ(12階)/ 仲介手数料無料 / リノベーション実施 / リバーサイドマンション
価格
1億1699万円
管理費
8,080円
間取り/面積
2SLDK / 62.10m2
東京都中央区月島
東京メトロ有楽町線 月島駅 から 徒歩2分グリーンパーク日本橋参番館(9階)/ 仲介手数料無料 / リノベーション済 / 複数路線が利用可能
価格
1億2999万円
管理費
12,400円
間取り/面積
2LDK / 57.33m2
東京都中央区日本橋大伝馬町
東京メトロ日比谷線 小伝馬町駅 から 徒歩2分パークタワー勝どきミッド(24階)/ 仲介手数料50%OFF / 「勝どき」駅直結 / 北西向き3LDK
価格
3億8980万円
管理費
32,640円
間取り/面積
2LDK / 91.87m2
東京都中央区勝どき
都営大江戸線 勝どき駅 から 徒歩1分キャピタルゲートプレイス ザ・タワー(30階)/ 仲介手数料無料 / 新規内装リノベーション / 南西向きワイドスパン住戸
価格
2億8000万円
管理費
27,480円
間取り/面積
3LDK / 77.86m2
東京都中央区月島
東京メトロ有楽町線 月島駅 から 徒歩1分パークタワー勝どきサウス(25階)/ 仲介手数料40%OFF / 2023年築 / 浜離宮・築地再開発VIEW
価格
2億3480万円
管理費
25,730円
間取り/面積
2LDK / 73.94m2
東京都中央区勝どき
都営大江戸線 勝どき駅 から 徒歩2分パークタワー勝どきサウス(31階)/ 仲介手数料50%OFF / 2023年築 / 勝どきエリアのニューシンボル
価格
2億4800万円
管理費
24,840円
間取り/面積
3LDK / 71.37m2
東京都中央区勝どき
都営大江戸線 勝どき駅 から 徒歩2分ブラントン日本橋小伝馬町(6階)/ 仲介手数料無料 / リノベーション済 / 複数路線が利用可能な日本橋アドレス
価格
2億2980万円
管理費
25,030円
間取り/面積
3LDK / 80.78m2
東京都中央区日本橋小伝馬町
東京メトロ日比谷線 小伝馬町駅 から 徒歩1分パークタワー晴海(3階)/ 仲介手数料50%OFF / リノベーション実施 / 晴海運河を望む部屋位置
価格
1億9980万円
管理費
26,530円
間取り/面積
3LDK / 81.64m2
東京都中央区晴海
東京メトロ有楽町線 月島駅 から 徒歩12分HARUMI FLAG PARK VILLAGE(T棟19階)/ 仲介手数料30%OFF / 新築未入居 / 東京湾を望む眺望良好な部屋位置
価格
1億9280万円
管理費
30,380円
間取り/面積
3LDK / 77.30m2
東京都中央区晴海
都営大江戸線 勝どき駅 から 徒歩18分
シティタワーズ東京ベイ ウエストタワー(30階)/ 仲介手数料無料 / 室内コンディション良好 / 南西角部屋
価格
1億8980万円
管理費
30,140円
間取り/面積
2LDK / 80.99m2
東京都江東区有明
ゆりかもめ 有明駅 から 徒歩3分ドゥ・トゥール ウエスト棟 ≪DEUX TOURS CANAL & SPA WEST≫(40階)仲介手数料30%OFF / 未内装物件 / 東京湾VIEWの西向き
価格
1億8500万円
管理費
22,098円
間取り/面積
2LDK / 70.98m2
東京都中央区晴海
都営大江戸線 勝どき駅 から 徒歩5分W COMFORT TOWERS EAST(46階)/ 仲介手数料無料 / リノベーション済 / 上層階の南西角住戸
価格
1億8800万円
管理費
20,800円
間取り/面積
4LDK / 109.12m2
東京都江東区東雲
東京メトロ有楽町線 辰巳駅 から 徒歩7分パークタワー晴海(10階)/ 仲介手数料30%OFF / 未内装物件 / 永久眺望の南向き
価格
1億8400万円
管理費
25,540円
間取り/面積
3LDK / 78.59m2
東京都中央区晴海
東京メトロ有楽町線 月島駅 から 徒歩11分アーバンドックパークシティ豊洲タワーB(11階)/ 仲介手数料50%OFF / 未内装物件 / 充実の共用施設
価格
1億6980万円
管理費
24,990円
間取り/面積
3LDK / 81.15m2
東京都江東区豊洲
東京メトロ有楽町線 豊州駅 から 徒歩6分ファミール月島グランスイートタワー(23階)/ 仲介手数料無料 / 新規内装リノベーション / 眺望良好な部屋位置
価格
1億6980万円
管理費
13,500円
間取り/面積
2LDK / 59.11m2
東京都中央区佃
東京メトロ有楽町線 月島駅 から 徒歩1分パークハウス清澄白河タワー(25階)西向き角部屋 / 83.75㎡の大型2LDK / 仲介手数料30%OFF
価格
1億6980万円
管理費
19,500円
間取り/面積
2LDK / 83.75m2
東京都江東区白河
東京メトロ半蔵門線 清澄白河駅 から 徒歩6分W COMFORT TOWERS WEST(45階)/ 仲介手数料無料 / 未内装物件 / 100㎡超の2SLDK
価格
1億6480万円
管理費
22,500円
間取り/面積
2SLDK / 113.02m2
東京都江東区東雲
東京メトロ有楽町線 辰巳駅 から 徒歩9分
レフィール日本橋馬喰町(12階)仲介手数料30%OFF / 2018年築 / 南西向き角住戸
価格
1億5780万円
管理費
19,100円
間取り/面積
2LDK / 66.09m2
東京都中央区日本橋馬喰町
総武本線 馬喰町駅 から 徒歩1分シティフロントタワー(22階)/ 仲介手数料無料 / リノベーション済 / リバーシティ21・タワーマンション
価格
1億4980万円
管理費
32,760円
間取り/面積
2LDK / 75.80m2
東京都中央区佃
東京メトロ有楽町線 月島駅 から 徒歩6分ベイサイドタワー晴海(29階)/ 仲介手数料無料 / 新規内装リノベーション済 / 免振タワーマンション
価格
1億6480万円
管理費
26,845円
間取り/面積
3LDK / 66.24m2
東京都中央区晴海
都営大江戸線 勝どき駅 から 徒歩10分DEUX TOURS EAST≪ドゥ・トゥール EAST棟≫(5階)/ 仲介手数料30%OFF / 未内装物件 / 北向きキャナルVIEW住戸
価格
1億4880万円
管理費
17,648円
間取り/面積
2LDK / 55.77m2
東京都中央区晴海
都営大江戸線 勝どき駅 から 徒歩5分W COMFORT TOWERS EAST(15階)/ 仲介手数料50%OFF / リノベーション済 / 東雲水辺公園を望む部屋位置
価格
1億4580万円
管理費
17,500円
間取り/面積
3LDK / 92.59m2
東京都江東区東雲
東京メトロ有楽町線 辰巳駅 から 徒歩7分ブランズタワー豊洲(14階)/ 仲介手数料30%OFF / 2021年築 / 富士山VIEWの南西向き
価格
1億4980万円
管理費
23,200円
間取り/面積
2LDK / 58.02m2
東京都江東区豊洲
東京メトロ有楽町線 豊州駅 から 徒歩4分マイキャッスル水天宮前壱番館(2階)/ 仲介手数料無料 / 新規内装リノベーション / 複数路線が利用可能
価格
1億4480万円
管理費
14,800円
間取り/面積
3LDK / 63.18m2
東京都中央区日本橋蛎殻町
東京メトロ半蔵門線 水天宮前駅 から 徒歩1分晴海アイランドトリトンスクエアビュータワー(37階)/ 仲介手数料20%OFF / リノベーション済 / 眺望良好な南西向き
価格
1億4280万円
管理費
16,150円
間取り/面積
2LDK / 83.68m2
東京都中央区晴海
東京メトロ有楽町線 月島駅 から 徒歩6分
猿江恩賜公園レジデンス(5階)仲介手数料30%OFF / 2023年築 / 陽当り良好の南向き
価格
1億4100万円
管理費
15,680円
間取り/面積
3SLDK / 80.35m2
東京都江東区大島
東京メトロ半蔵門線 住吉駅 から 徒歩10分オーベルジュ日本橋(12階)/ 仲介手数料無料 / リノベーション実施 / 日本橋アドレス
価格
1億3999万円
管理費
11,250円
間取り/面積
2LDK / 58.80m2
東京都中央区日本橋中洲
東京メトロ半蔵門線 水天宮前駅 から 徒歩5分ザ・晴海レジデンス(18階)/ 仲介手数料無料 / 未内装物件 / 眺望良好な上層階
価格
1億2399万円
管理費
17,600円
間取り/面積
2LDK / 75.95m2
東京都中央区晴海
都営大江戸線 勝どき駅 から 徒歩11分マイキャッスルリバーフロントタワー銀座東(3階)/ 仲介手数料無料 / リノベーション実施 / 隅田川テラスに隣接
価格
1億2999万円
管理費
11,330円
間取り/面積
2SLDK / 60.30m2
東京都中央区明石町
東京メトロ有楽町線 新富町駅 から 徒歩7分晴海アイランドトリトンスクエアビュータワー(38階)/ 仲介手数料無料 / 新規内装リノベーション / 南西向き
価格
1億4580万円
管理費
16,150円
間取り/面積
1SLDK / 83.68m2
東京都中央区晴海
東京メトロ有楽町線 月島駅 から 徒歩6分勝どきザ・タワー(36階)/ 仲介手数料50%OFF / 2016年築 / 東京タワービュー
価格
1億3980万円
管理費
11,930円
間取り/面積
1R / 49.95m2
東京都中央区勝どき
都営大江戸線 勝どき駅 から 徒歩7分
銀座二丁目レジデンス(7階)/ 仲介手数料無料 / リノベーション実施 / 銀座アドレス
価格
1億2499万円
管理費
20,300円
間取り/面積
1LDK / 40.74m2
東京都中央区銀座
都営浅草線 東銀座駅 から 徒歩4分オリゾンマーレ(11階)/ 仲介手数料無料 / リノベーション済 / 有明エリアの大規模物件
価格
1億1980万円
管理費
20,730円
間取り/面積
2LDK / 77.63m2
東京都江東区有明
ゆりかもめ 有明テニスの森駅 から 徒歩4分アクシルコート日本橋(7階)/ 仲介手数料無料 / リノベーション実施 / 日本橋人形町エリア
価格
1億2490万円
管理費
13,060円
間取り/面積
2LDK / 56.76m2
東京都中央区日本橋堀留町
都営浅草線 人形町駅 から 徒歩3分ザ・パークハウス晴海タワーズ ティアロレジデンス(42階)/ 仲介手数料無料 / リノベーション済 / 眺望良好な南向き上層階
価格
1億3480万円
管理費
18,650円
間取り/面積
2LDK / 58.31m2
東京都中央区晴海
都営大江戸線 勝どき駅 から 徒歩13分パークホームズ錦糸町猿江恩賜公園(4階)仲介手数料30%OFF / 陽当りの良い南向き / 静かな住環境
価格
1億1780万円
管理費
16,920円
間取り/面積
3LDK / 65.83m2
東京都江東区毛利
東京メトロ半蔵門線 住吉駅 から 徒歩6分ベイサイドタワー晴海(8階)/ 仲介手数料30%OFF / リノベーション済 / 2015年築
価格
1億1890万円
管理費
23,365円
間取り/面積
2LDK / 57.20m2
東京都中央区晴海
都営大江戸線 勝どき駅 から 徒歩10分スカイライトタワー(17階)/ 仲介手数料無料 / リノベーション実施 / リバーシティ21
価格
1億1499万円
管理費
26,220円
間取り/面積
2LDK / 59.41m2
東京都中央区佃
東京メトロ有楽町線 月島駅 から 徒歩6分月島リバーハウスB棟(5階)/ 仲介手数料無料 / リノベーション済 / リバーサイドマンション
価格
1億1490万円
管理費
13,860円
間取り/面積
3LDK / 76.44m2
東京都中央区月島
東京メトロ有楽町線 月島駅 から 徒歩4分
グランシティ日本橋(2階)/ 仲介手数料30%OFF / リノベーション実施 / 人形町・水天宮前エリア
価格
1億1490万円
管理費
12,600円
間取り/面積
2LDK / 55.75m2
東京都中央区日本橋蛎殻町
東京メトロ半蔵門線 水天宮前駅 から 徒歩3分-
本日更新件
-
非公開物件情報件
-
一週間内の更新件
-
一週間内の新着件
-
全物件数件
最終更新日:月 日
-
- 【当社売主物件】(410)
- 中央区:シティフロントタワー(4)
- 墨田区:マイキャッスル両国エクセレントステージ(4)
- 品川区:ライオンズマンション西五反田(3)
- 中央区:ファミール日本橋グランスイートプラザ(4)
- 横浜市神奈川区:ライオンズマンション岸根公園(4)
- 渋谷区:ニュー代々木マンション(1)
- 墨田区:両国緑スカイハイツ(3)
- 江東区:ガーデンフラッグシティ(4)
- 墨田区:シーズスクエア菊川(4)
- 渋谷区:キャニオングランデ代々木公園(4)
- 江東区:ニュートンプレイス(4)
- 坂戸市:ダイアパレス坂戸ステーションガーデン(3)
- 江東区:ニュートンプレイス(3)
- 江東区:プラウド門前仲町(4)
- 埼玉県坂戸市:坂戸市清水町土地(3)
- 中央区:スカイライトタワー(9)
- 中央区:センチュリーパークタワー(4)
- 江東区:グランアルト豊洲(7)
- 江東区:イトーピア南砂町マンション(3)
- 深谷市:深谷市仲町土地(2)
- 江東区:アーバンドッグパークシティ豊洲タワーA(4)
- 渋谷区:パークホームズ代々木西原(2)
- 渋谷区:ブリリア代官山プレステージ(2)
- 【リフォーム事例】(8)
- 【取引実績】(1)
- 【おすすめ物件】(142)
- ■イトーピア南砂町マンション(1)
- ■ウェルタワー深川(1)
- ■エンゼルハイム門前仲町(1)
- ■エクセル東陽町(4)
- ■アーバンハイツ北砂(1)
- ■アーバンメゾン東大島(1)
- ■アデニウムコート木場公園(1)
- ■イーストコモンズ清澄白河(1)
- ■イトーピア東大島マンション(5)
- ■オーベルグランディオ ベイ・フロント(1)
- ■イトーピア東陽町マンション(5)
- ■クレッセント東京ビュータワー(2)
- ■コスモ・ザ・キャナル東京イースト(1)
- ■コスモ木場キャナルブリーズ(1)
- ■クレストフォルム東京アクアビュー(1)
- ■清澄ハイツ(1)
- ■クリオレジダンス東京(2)
- ■コスモ両国アーバンフォルム(1)
- ■木場ハイツ(1)
- ■木場サンハイツ(1)
- ■グランパーク門前仲町(1)
- ■クレヴィア門前仲町(1)
- ■コープ野村大島(1)
- ■クレアシティ大島(1)
- ■グランシティ木場(1)
- ■木場サニータウン(7)
- ■ガーデンフラッグシティ(1)
- ■クレストフォルム門前仲町古石場(1)
- ■秀和第2東陽町レジデンス(2)
- ■セレナハイムペア浜園(1)
- ■秀和第4東陽町レジデンス(3)
- ■ソフィア東大島(1)
- ■シェルゼ木場公園(1)
- ■ジースクエア(1)
- ■シティコープ千石(1)
- ■スカイシティ南砂(1)
- ■富岡レジデンス(1)
- ■東陽6丁目ハイツ(1)
- ■東海ホーム富岡八幡(1)
- ■東京フロントコート(1)
- ■チサンマンション両国(1)
- ■東陽町スカイハイツ(2)
- ■東陽サニーハイツ(1)
- ■ニュートンプレイス(4)
- ■プラザ元加賀(1)
- ■トリトンスクエアビュータワー(1)
- ■ビーシティキャナルウィング(1)
- ■三井東陽ハイツ(1)
- ■プラタスステージ門前仲町(1)
- ■ハイム木場公園(1)
- ■プラウド清澄白河リバーサイド(1)
- ■牡丹町住宅(2)
- ■ファミリータウン東陽(13)
- ■ファミール亀戸(2)
- ■ファミール浜園(4)
- ■深川住宅(6)
- ■ハイラーク木場(1)
- ■パークシティ中央湊ザ・タワー(1)
- ■マイキャッスル門前仲町古石場ウエスト(1)
- ■門前仲町スカイハイツ(9)
- ■南砂住宅(1)
- ■門前仲町ハイム(1)
- ■南砂グリーンハイツ1号棟(1)
- ■マンション東陽町(1)
- ■ルネ門前仲町(6)
- ■リバーサイドタウン木場南スカイハイツ(1)
- ■ライオンズステージキャピタルイースト(2)
- ■レクセルステージ東京(1)
- ■ルイシャトレ木場公園(1)
- 【ブログ】(495)
- 【マンションのご売却】(13)
- ご売却案件探しています!(4)
- 【マンションのご購入】(53)







