ブランズタワー豊洲(23階) / 仲介手数料30%OFF / 2021年築 / 眺望良好な上階角住戸
東急不動産旧分譲の【BRANZ】シリーズのタワーレジデンス / 商住複合の免振タワーマンション / 眺望良好な上階角住戸 / ペット2匹飼育可
- 
                    アクセス 
- 東京メトロ有楽町線 豊州駅 から 徒歩4分
- 
                    価格 
- 2億1800万 円
- 
                    管理費 
- 32,300円
- 
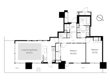
                    間取り 
- 2LDK 北東向き
- 
                    専有面積 
- 85.57m 2 ( 25.88坪 )
- 
                    築年月 
- 2021年10月 ( 築4年 )
間取り図
                                                
                                    
詳細・設備・条件・取引について
基本
| 問い合わせ番号 | integrity_4_7000 | ||
|---|---|---|---|
| アクセス | 東京メトロ有楽町線 豊州駅 
                                            から 徒歩4分 ゆりかもめ 豊洲駅 から 徒歩4分 ゆりかもめ 新豊洲駅 から 徒歩7分 | 種別 | マンション | 
| 所在地 | 東京都江東区豊洲5丁目 1-13   | 学校区 | - | 
| 問い合わせ番号 | integrity_4_7000 | 
|---|---|
| アクセス | 東京メトロ有楽町線 豊州駅 
                                            から 徒歩4分 ゆりかもめ 豊洲駅 から 徒歩4分 ゆりかもめ 新豊洲駅 から 徒歩7分 | 
| 種別 | マンション | 
| 所在地 | 東京都江東区豊洲5丁目 1-13   | 
費用
| 価格 | 2億1800万円 | 公庫・融資 | - | 
|---|---|---|---|
| 管理費 | 32,300円 | 修繕積立金 | 8,300円 | 
| 駐車場 | 敷地内 ( 月額 27,500円 ) | バイク置場 | 敷地内 ( 月額5000円 ) | 
| 駐輪場 | 敷地内 ( 月額200円 ) | ||
| その他費用 (月次等) | インターネット利用料:月額、1265円 | 
| 価格 | 2億1800万円 | 
|---|---|
| 公庫・融資 | - | 
| 管理費 | 32,300円 | 
| 修繕積立金 | 8,300円 | 
| 駐車場 | 敷地内 ( 月額 27,500円 ) | 
| バイク置場 | 敷地内 ( 月額5000円 ) | 
| 駐輪場 | 敷地内 ( 月額200円 ) | 
| その他費用 (月次等) | インターネット利用料:月額、1265円 | 
建物
| 構造 | 鉄筋コンクリート造 | 完成年月 | 2021年10月 ( 築4年 ) | 
|---|---|---|---|
| 専有面積 | 85.57m 2 ( 25.88坪 ) | バルコニー面積 | 39.07m 2 ( 11.81坪 ) 北東向き | 
| 間取り | 2LDK 北東向き | 所在階 | 23階 | 
| リフォーム | - | リノベーション | - | 
| 階建 | 48階建 | 総戸数 | 1152戸 | 
| 管理人 | 日勤管理 | 管理形態 | 全面委託 | 
| 管理組合有無 | 有 | 管理会社名 | 株式会社東急コミュニティー | 
| 施工会社名 | 株式会社熊谷組 | 建築確認番号 | - | 
| こだわり条件 | 
 | ||
| 設備・条件 | ■駐車場:月額27,500円 ■バイク置場:月額5,000円※ミニバイク ■駐輪場:月額200円~800円 ■インターネット使用料:月額1,265円 ■ペット:飼育可(犬・猫2匹まで) | ||
| 構造 | 鉄筋コンクリート造 | ||
|---|---|---|---|
| 完成年月 | 2021年10月 ( 築4年 ) | ||
| 専有面積 | 85.57m 2 ( 25.88坪 ) | ||
| バルコニー面積 | 39.07m 2 ( 11.81坪 ) 北東向き | ||
| 間取り | 2LDK 北東向き | ||
| 所在階 | 23階 | ||
| リフォーム | - | ||
| リノベーション | - | ||
| 階建 | 48階建 | ||
| 総戸数 | 1152戸 | ||
| 管理人 | 日勤管理 | ||
| 管理形態 | 全面委託 | ||
| 管理組合有無 | 有 | ||
| 管理会社名 | 株式会社東急コミュニティー | ||
| 施工会社名 | 株式会社熊谷組 | ||
| 建築確認番号 | - | ||
| こだわり条件 | ペット相談/エレベーター/角部屋/二階以上/日当たり良好/24時間ごみ出し可/コンビニ近くに有/免振・耐震設計/タワーマンション/システムキッチン/対面キッチン/浄水器/食器洗浄乾燥機/ディスポーザー/追い焚き/シャンプードレッサー/温水洗浄便座/浴室乾燥機/床暖房/24時間換気システム/ウォークインクローゼット/シューズインクローゼット/CATV/インターネット/オートロック/宅配ボックス/TVドアホン付き/監視・防犯カメラ/駐輪場有り/バイク置場有り/駐車場有り/フローリング/フラット35/2面採光/住宅ローン減税対象/未内装物件/総戸数100戸以上/2rooms~ | ||
| 設備・条件 | ■駐車場:月額27,500円 ■バイク置場:月額5,000円※ミニバイク ■駐輪場:月額200円~800円 ■インターネット使用料:月額1,265円 ■ペット:飼育可(犬・猫2匹まで) | ||
その他
| 現況 ・ 入居 | 居住中 ・ | 取引態様 | 仲介 | 
|---|---|---|---|
| 次回更新日 | 2026/01/26 | 担当者 | - | 
| 現況 ・ 入居 | 居住中 ・ | 
|---|---|
| 取引態様 | 仲介 | 
| 次回更新日 | 2026/01/26 | 
| 担当者 | - | 
ブランズタワー豊洲(23階)の詳しい情報やお問い合わせはこちら!
    お問い合わせ先:株式会社インテグリティ 本社
    
    免許番号:東京都知事(3)第96579号
営業時間:9:30 ~ 18:30
TEL:03-5620-8581
 
    こちらの物件もあります。
9600万 円
東京都江東区大島
住吉駅から徒歩 9分
2億1700万 円
東京都中央区勝どき
勝どき駅から徒歩 6分
1億7499万 円
東京都中央区勝どき
勝どき駅から徒歩 6分
7998万 円
東京都江東区亀戸
亀戸駅から徒歩 3分
6980万 円
東京都墨田区緑
両国駅から徒歩 6分
5190万 円
東京都江東区南砂
東陽町駅から徒歩 11分
1億1800万 円
東京都中央区銀座
新富町駅から徒歩 3分
1億9800万 円
東京都中央区勝どき
勝どき駅から徒歩 7分
4990万 円
東京都中央区湊
新富町駅から徒歩 4分
1億5990万 円
東京都中央区明石町
新富町駅から徒歩 7分
8480万 円
東京都中央区月島
月島駅から徒歩 3分
8990万 円
東京都江東区南砂
南砂町駅から徒歩 8分
5499万 円
東京都江東区佐賀
水天宮前駅から徒歩 10分
1億4790万 円
東京都中央区湊
八丁堀駅から徒歩 5分
4780万 円
東京都江東区亀戸
亀戸駅から徒歩 4分




 
         
             
             
    
≪おすすめポイント≫
■2021年築&商住複合免振タワーマンション
■東急不動産旧分譲【BRANZ】シリーズ
■48階建23階部分の北東向き
■ダブルオートロック
■2021年(令和3年)築
■上階角住戸
■ディスポーザー付き
■浴室暖房乾燥機付き
■24時間有人管理・24時間ゴミ出し可能
■ペット飼育可
■充実の共用施設
≪仲介手数料30%OFF≫
当社では本物件ご購入時の仲介手数料約990万円を30%OFFにてご案内しております。
■中古マンションのご購入やご売却は取引実績多数の「株式会社インテグリティ」にお任せ下さい!
■ご売却物件大募集中
■無料査定・秘密厳守
■不動産仲介
■不動産買取り※高価買取り実施中(一都三県・リゾート・地方都市対応)
■リフォーム&リノベーション