東陽町コーポラス(8階) / 仲介手数料無料 / リノベーション実施 / 上層階角住戸
日当たり良好な上層階 / 「東陽町」駅近物件 / マンション1階部分にドラッグストアあり / 目の前にバス停あり
-
アクセス
- 東京メトロ東西線 東陽町駅 から 徒歩3分
-
価格
- 4499万 円
-
管理費
- 11,300円
-
間取り
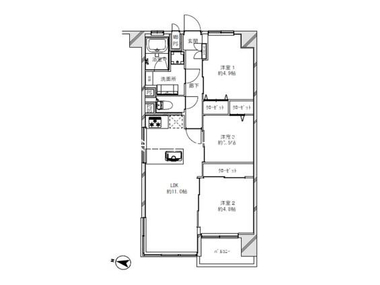
- 3LDK 西向き
-
専有面積
- 55.38m 2 ( 16.75坪 )
-
築年月
- 1973年12月 ( 築52年 )
間取り図
詳細・設備・条件・取引について
基本
| 問い合わせ番号 | integrity_4_7685 | ||
|---|---|---|---|
| アクセス |
東京メトロ東西線 東陽町駅
から 徒歩3分
東京メトロ東西線 木場駅 から 徒歩6分 |
種別 | マンション |
| 所在地 |
東京都江東区東陽3丁目 23-26
|
学校区 | 東陽小学校(江東区) |
| 問い合わせ番号 | integrity_4_7685 |
|---|---|
| アクセス |
東京メトロ東西線 東陽町駅
から 徒歩3分
東京メトロ東西線 木場駅 から 徒歩6分 |
| 種別 | マンション |
| 所在地 |
東京都江東区東陽3丁目 23-26
|
| 学校区 | 東陽小学校(江東区) |
費用
| 価格 | 4499万円 | 公庫・融資 | - |
|---|---|---|---|
| 管理費 | 11,300円 | 修繕積立金 | 11,000円 |
| 駐車場 | - | バイク置場 | - |
| 駐輪場 | 敷地内 ( 月額100円 ) |
| 価格 | 4499万円 |
|---|---|
| 公庫・融資 | - |
| 管理費 | 11,300円 |
| 修繕積立金 | 11,000円 |
| 駐車場 | - |
| バイク置場 | - |
| 駐輪場 | 敷地内 ( 月額100円 ) |
建物
| 構造 | 鉄骨鉄筋コンクリート造 | 完成年月 | 1973年12月 ( 築52年 ) |
|---|---|---|---|
| 専有面積 | 55.38m 2 ( 16.75坪 ) | バルコニー面積 | 3.30m 2 ( 0.99坪 ) 西向き |
| 間取り | 3LDK 西向き | 所在階 | 8階 |
| リフォーム | - | リノベーション | 2026年03月実施、 新規内装リノベーション |
| 階建 | 14階建 | 総戸数 | 73戸 |
| 管理人 | 日勤管理 | 管理形態 | 全面委託 |
| 管理組合有無 | 有 | 管理会社名 | 日本ハウズイング(株) |
| 施工会社名 | 馬淵建設(株) | 建築確認番号 | - |
| こだわり条件 |
|
||
| 設備・条件 | ■駐輪場:年額1,200円 ■インターネット:NTTフレッツ光 ■CATV:東京ベイネットワーク ■ペット可(犬・猫合わせて2匹まで※細則あり) ■学区:東陽小学校・東陽中学校 | ||
| 構造 | 鉄骨鉄筋コンクリート造 | ||
|---|---|---|---|
| 完成年月 | 1973年12月 ( 築52年 ) | ||
| 専有面積 | 55.38m 2 ( 16.75坪 ) | ||
| バルコニー面積 | 3.30m 2 ( 0.99坪 ) 西向き | ||
| 間取り | 3LDK 西向き | ||
| 所在階 | 8階 | ||
| リフォーム | - | ||
| リノベーション | 2026年03月実施、 新規内装リノベーション | ||
| 階建 | 14階建 | ||
| 総戸数 | 73戸 | ||
| 管理人 | 日勤管理 | ||
| 管理形態 | 全面委託 | ||
| 管理組合有無 | 有 | ||
| 管理会社名 | 日本ハウズイング(株) | ||
| 施工会社名 | 馬淵建設(株) | ||
| 建築確認番号 | - | ||
| こだわり条件 | ペット相談/即入居可/仲介手数料ゼロ/エレベーター/角部屋/二階以上/日当たり良好/コンビニ近くに有/システムキッチン/対面キッチン/浄水器/追い焚き/シャンプードレッサー/温水洗浄便座/浴室乾燥機/24時間換気システム/CATV/インターネット/オートロック/TVドアホン付き/監視・防犯カメラ/駐輪場有り/フローリング/リフォーム済/2面採光/3rooms~/5,000万円以下 | ||
| 設備・条件 | ■駐輪場:年額1,200円 ■インターネット:NTTフレッツ光 ■CATV:東京ベイネットワーク ■ペット可(犬・猫合わせて2匹まで※細則あり) ■学区:東陽小学校・東陽中学校 | ||
その他
| 現況 ・ 入居 | 空家 ・ 即時 | 取引態様 | 仲介 |
|---|---|---|---|
| 次回更新日 | 2026/08/07 | 担当者 | - |
| 現況 ・ 入居 | 空家 ・ 即時 |
|---|---|
| 取引態様 | 仲介 |
| 次回更新日 | 2026/08/07 |
| 担当者 | - |
東陽町コーポラス(8階)の詳しい情報やお問い合わせはこちら!
お問い合わせ先:株式会社インテグリティ 本社
免許番号:東京都知事(3)第96579号
営業時間:9:30 ~ 18:30
TEL:03-5620-8581
こちらの物件もあります。
1億4480万 円
東京都中央区晴海
勝どき駅から徒歩 18分
1億3980万 円
東京都中央区晴海
月島駅から徒歩 6分
2億6690万 円
東京都中央区新川
八丁堀駅から徒歩 4分
3998万 円
東京都江東区亀戸
東大島駅から徒歩 14分
1億499万 円
東京都中央区東日本橋
東日本橋駅から徒歩 1分
1億290万 円
東京都中央区日本橋中洲
水天宮前駅から徒歩 7分
8999万 円
東京都中央区日本橋蛎殻町
水天宮前駅から徒歩 2分
1億7990万 円
東京都江東区有明
国際展示場駅から徒歩 13分
1億1999万 円
東京都中央区明石町
新富町駅から徒歩 7分
1億5980万 円
東京都中央区晴海
勝どき駅から徒歩 18分
6999万 円
東京都江東区亀戸
東大島駅から徒歩 10分
1億1290万 円
東京都江東区有明
有明テニスの森駅から徒歩 9分
4880万 円
東京都江東区東砂
大島駅から徒歩 12分
4290万 円
東京都江東区東陽
東陽町駅から徒歩 4分
8780万 円
東京都江東区三好
清澄白河駅から徒歩 9分





≪おすすめポイント≫
■快速停車駅「東陽町」駅徒歩3分の駅近物件
■ペットと暮らせるリノベーションマンション
■陽当り・眺望良好な上層階の部屋位置
■対面キッチン
■豊富な収納、整形な間取りが魅力
■マンション1階部分に「くすりの福太郎」あり
■マンション目の前のバス停「東陽操車所前」錦糸町・亀戸・大島方面へのアクセス良好。
■東陽小学校・東陽中学校学区内
≪住宅ローン例≫
物件価格 : 4,499万円
頭 金 : 0万円
借入金額 : 4,499万円
期 間 : 35年
金 利 : 0.725%(変動金利)
月々返済 : 121,316円※ボーナス時返なし
≪仲介手数料無料≫
当社では本物件ご購入時の仲介手数料約155万円が不要です(^^)/
【東陽町コーポラス】のご案内は★中古マンション専門★「株式会社インテグリティ」にお任せ下さい!